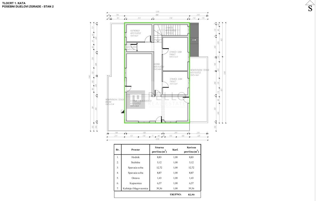
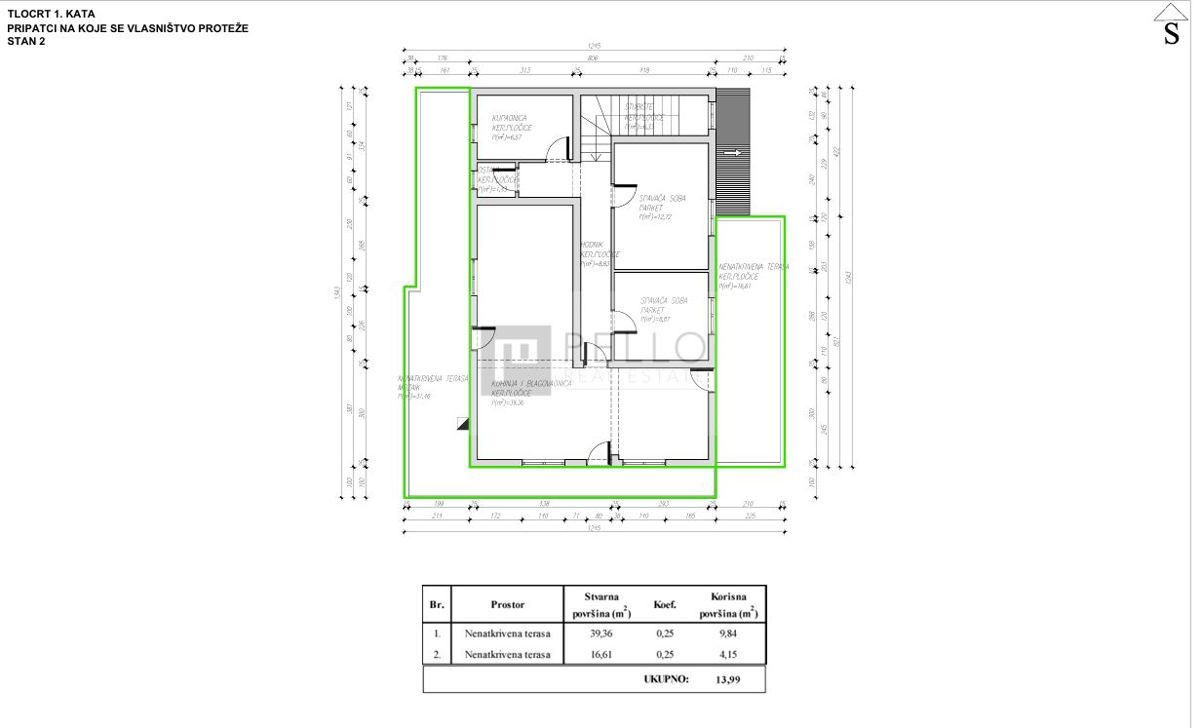
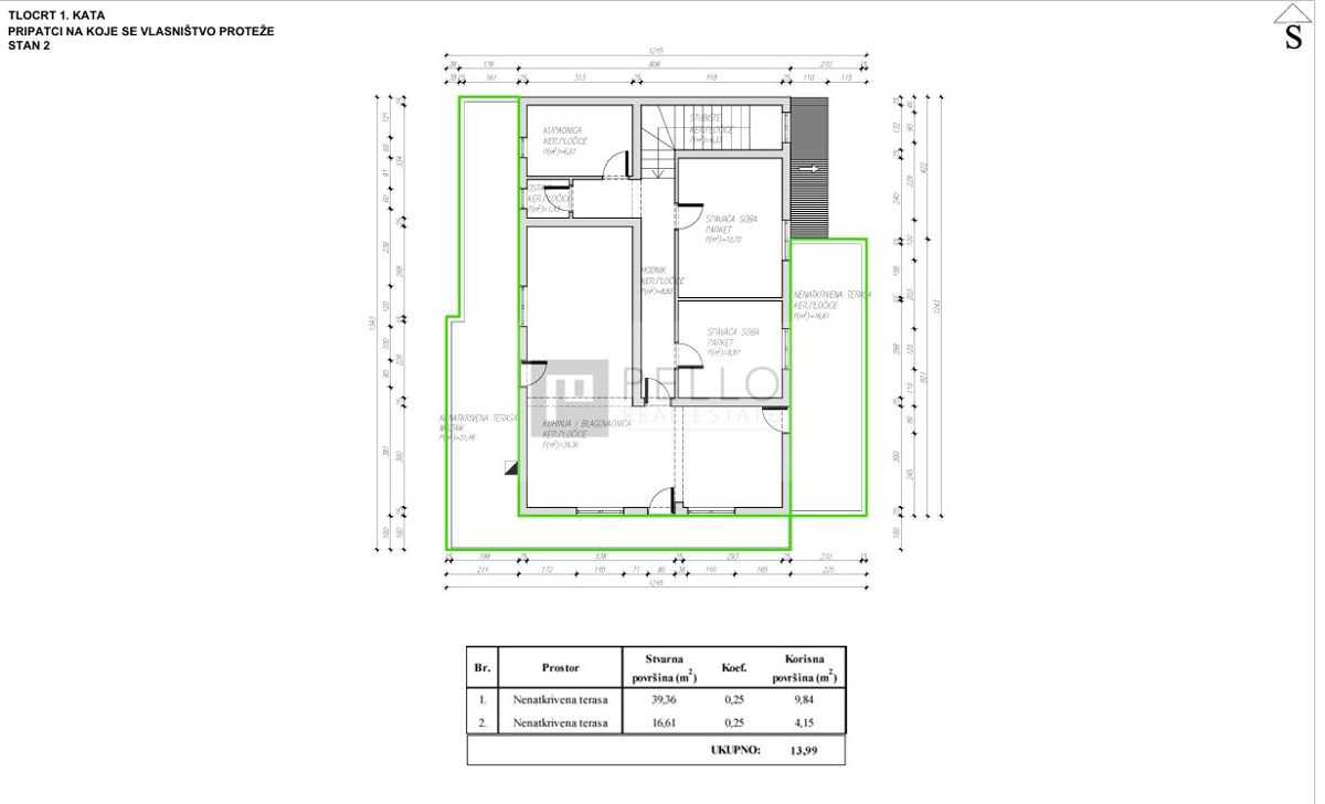
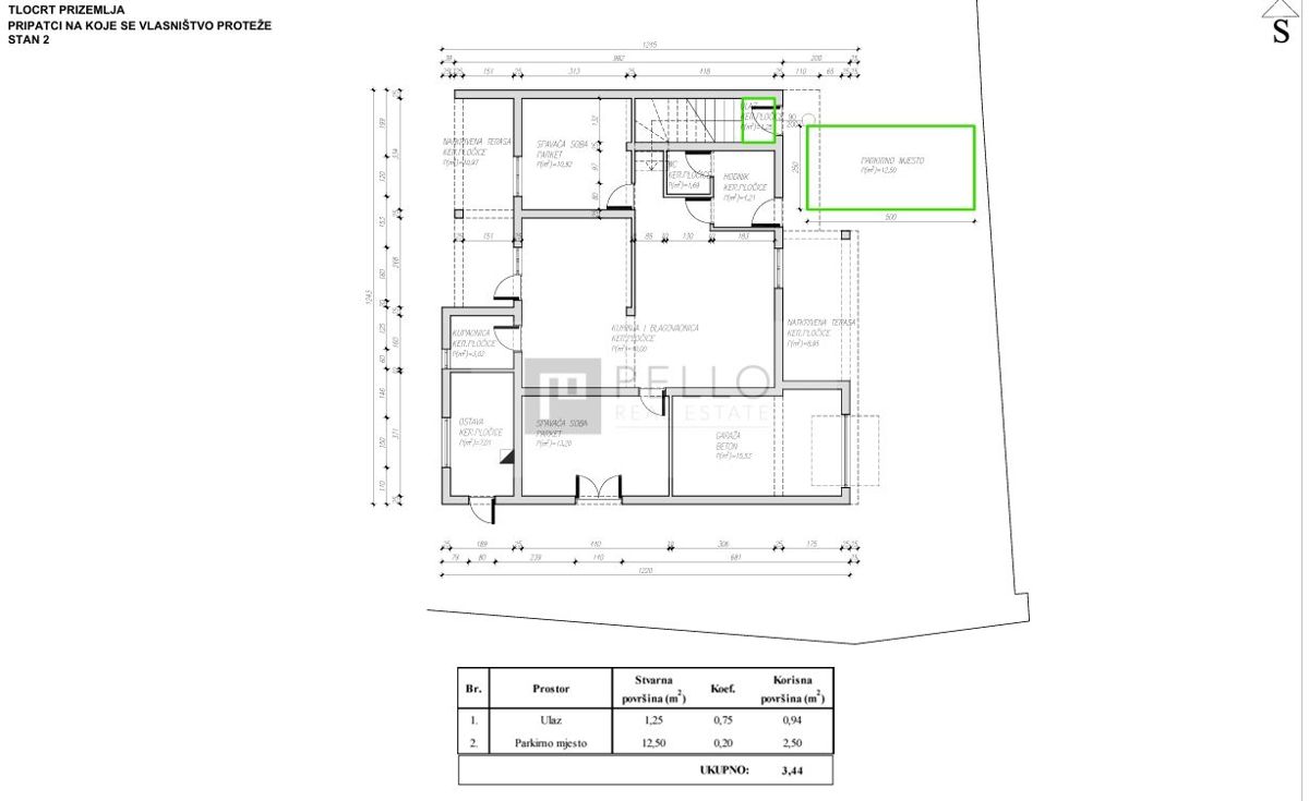
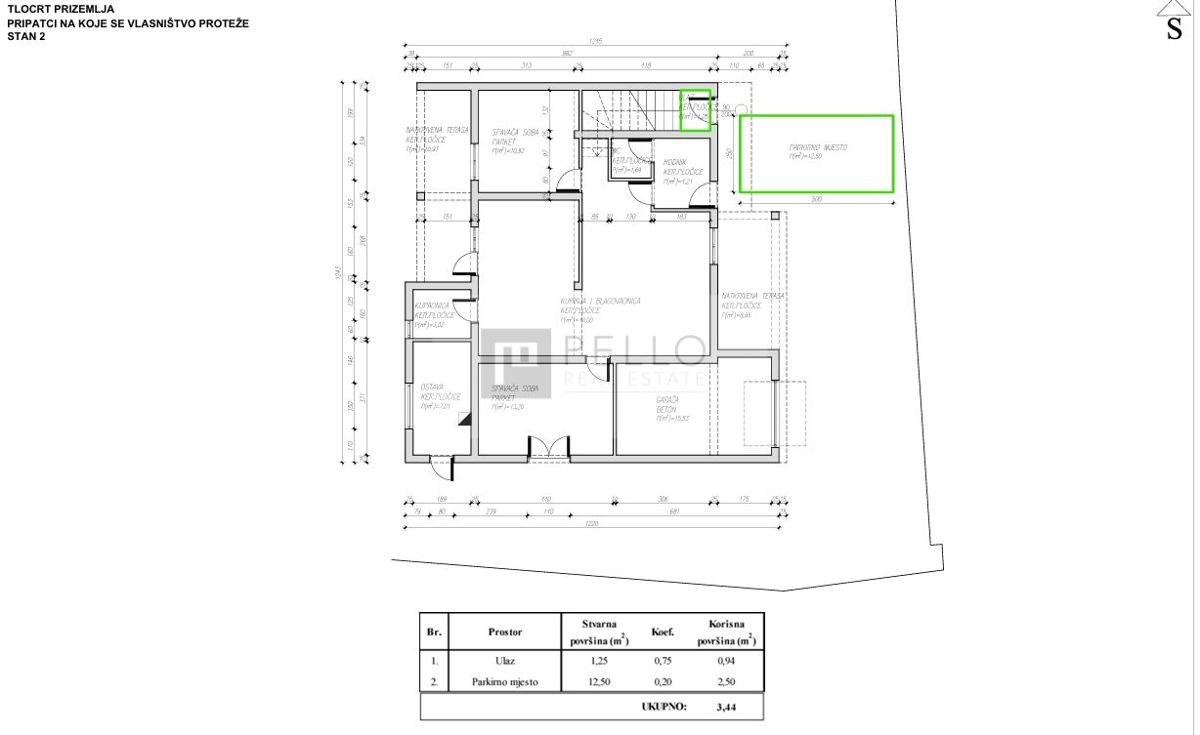
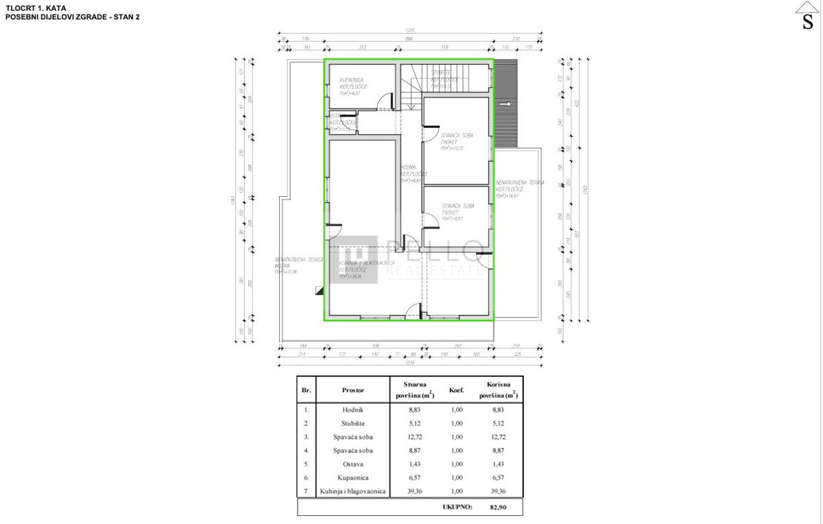
Квартиры в деревне OREBIĆ - по цене 259.999,00 € - площадью 100 m2

Фото агентства Pello Real Estate

REC ID 1229774

Подробности