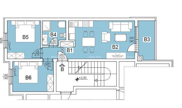
Квартиры в деревне PULA - по цене 269.000,00 € - площадью 54 m2

Фото агентства Alma Dom - Real Estate

REC ID 1228278

Подробности