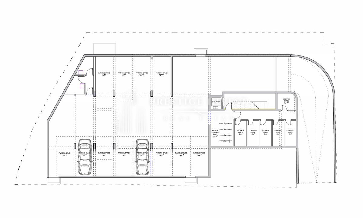
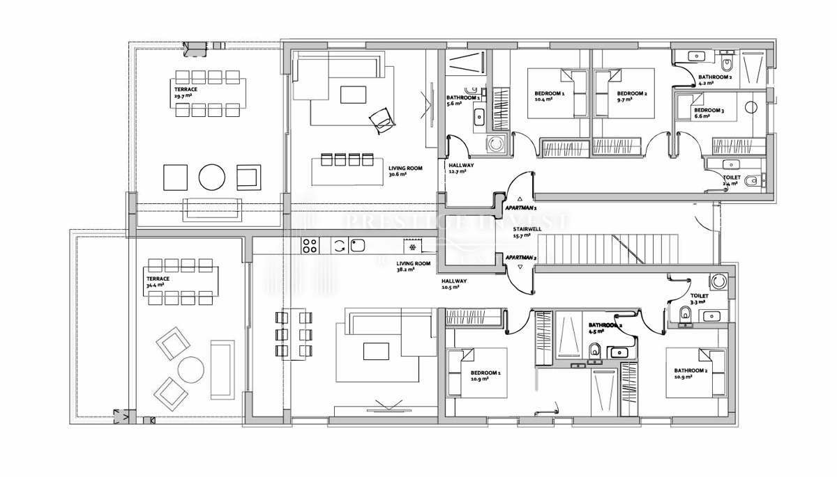
Квартиры в деревне ZADAR - по цене 1.030.975,00 € - площадью 123 m2

Фото агентства Prestige Invest

REC ID 1220854

Подробности