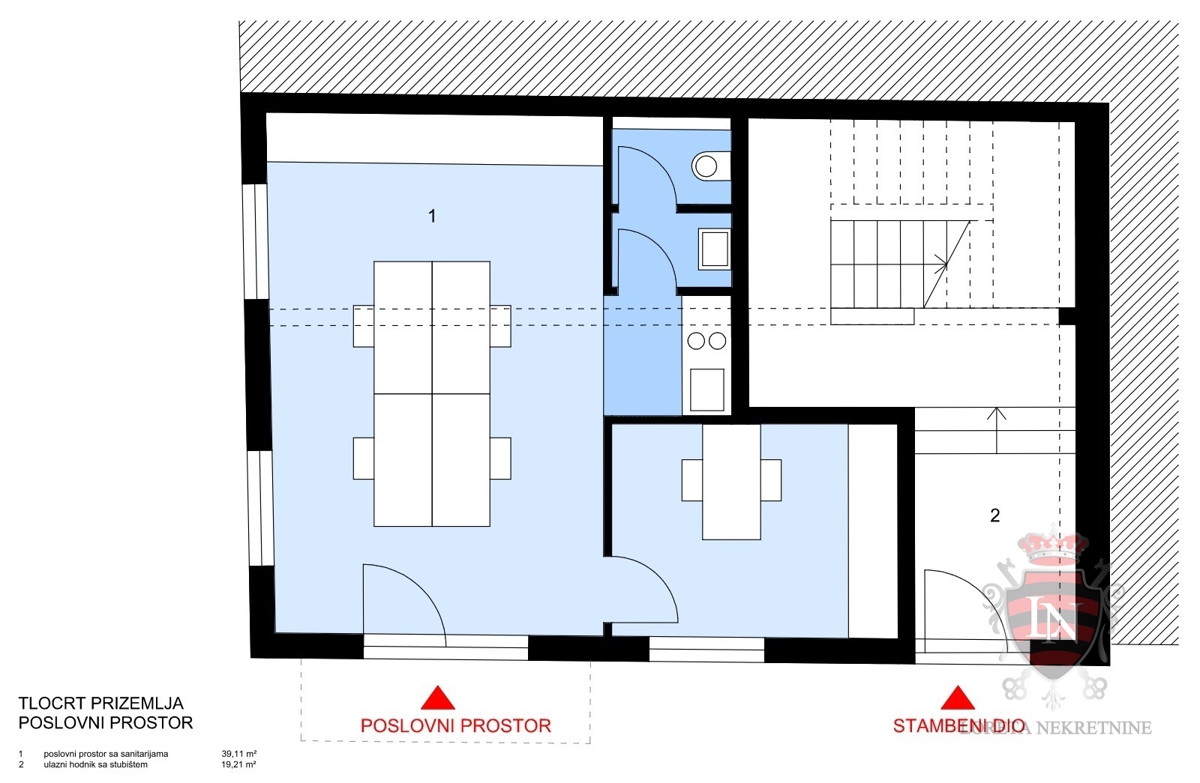
Коммерческие площади в деревне ŠIBENIK - по цене 130.000,00 € - площадью 40 m2

Фото агентства Loreta nekretnine

REC ID 1218734

Подробности