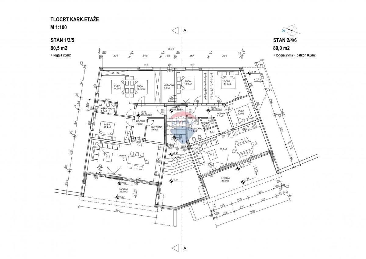
Квартиры в деревне KLENOVICA - по цене 599.900,00 € - площадью 115 m2

Фото агентства Remax Centar nekretnina

REC ID 1166438

Подробности