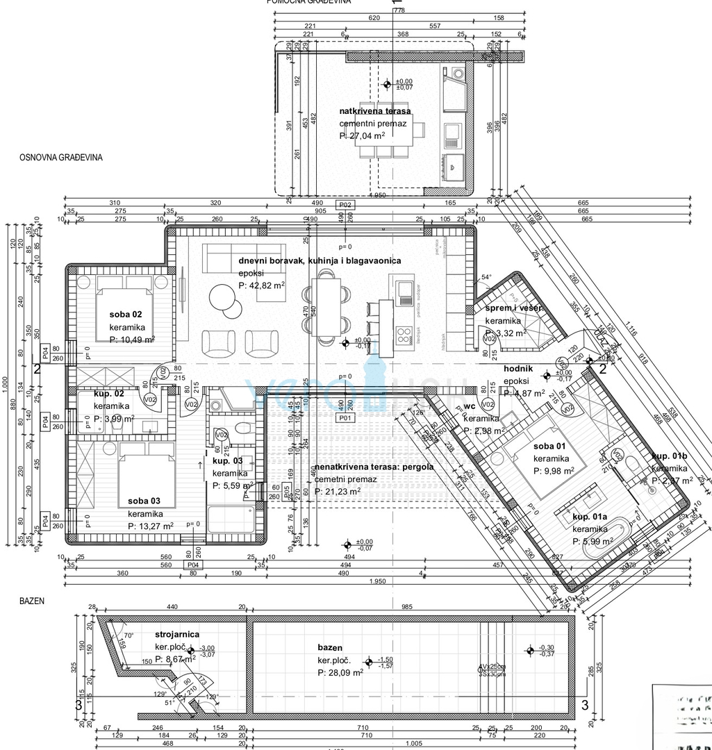
Дома в деревне KRK - по цене 850.000,00 € - площадью 163 m2

Фото агентства VERO KRK nekretnine

REC ID 1164064

Подробности