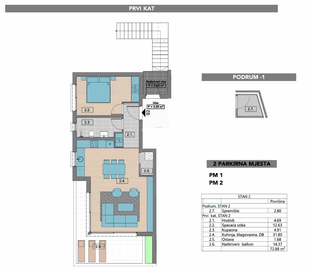
Квартиры в деревне KRK - по цене 362.000,00 € - площадью 73 m2

Фото агентства LIBURNIA nekretnine

REC ID 1112511

Подробности