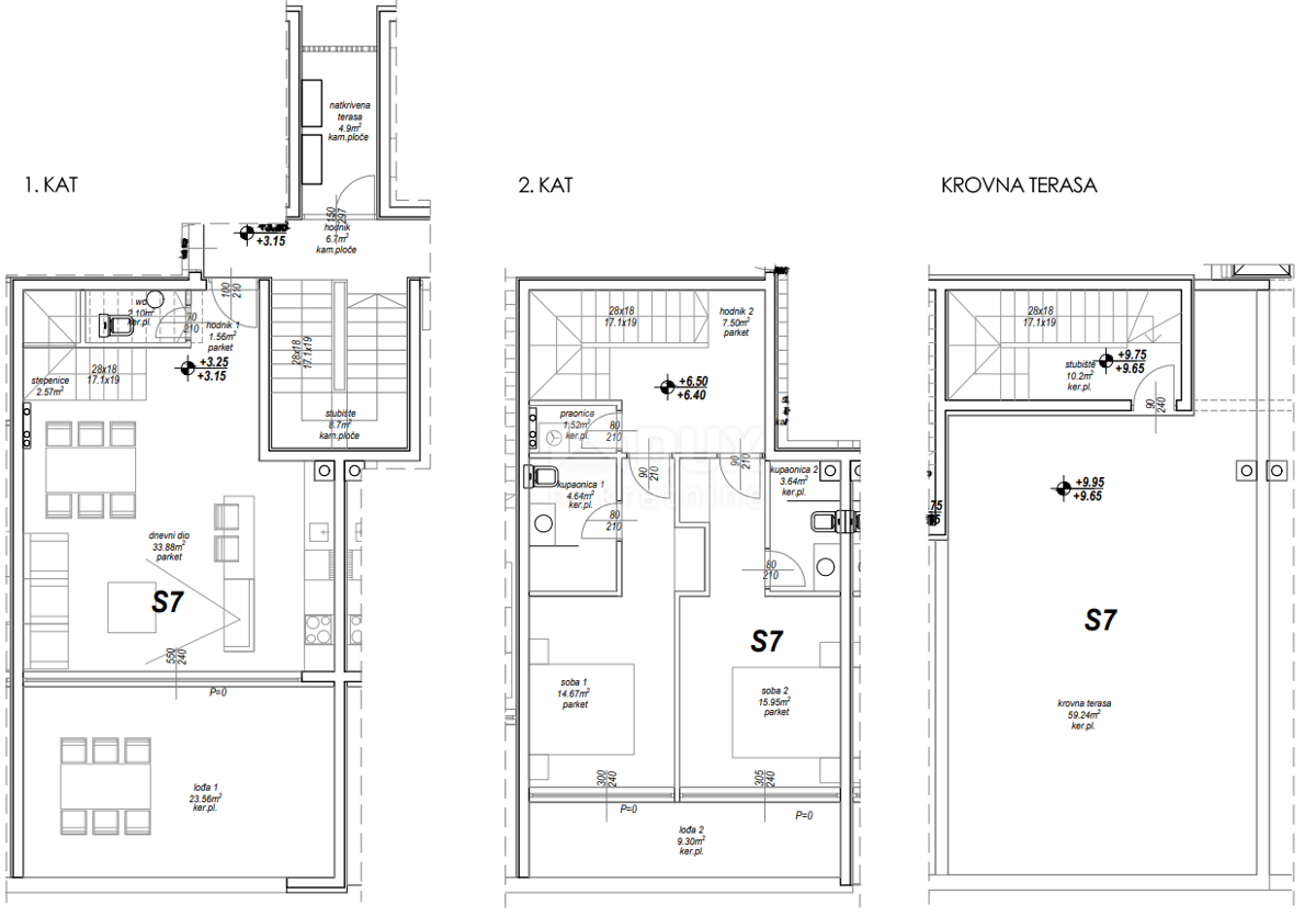
Квартиры в деревне PRIVLAKA - по цене 454.965,00 € - площадью 129 m2

Фото агентства DUX Nekretnine

REC ID 1085674

Подробности