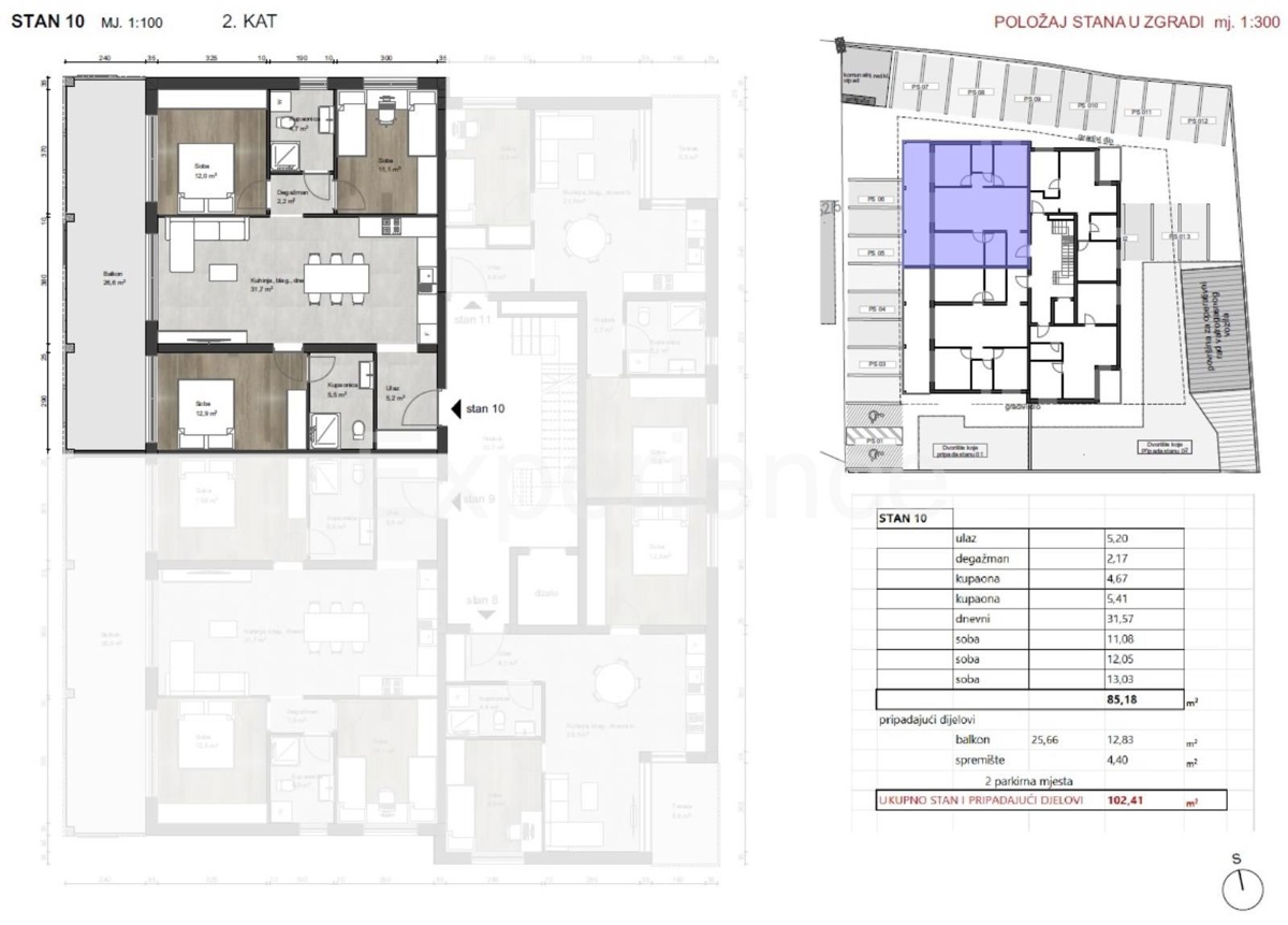
Квартиры в деревне TAR - по цене 390.000,00 € - площадью 102 m2

Фото агентства EXPERIENCE Real Estate

REC ID 1021342

Подробности