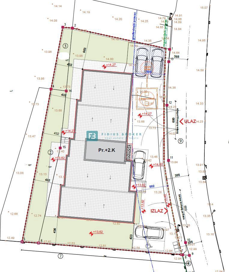
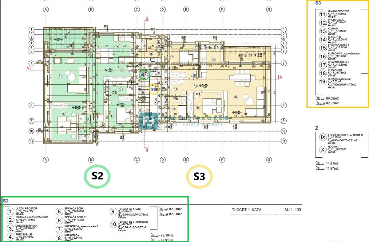
Appartamento in città VODICE - con un prezzo di 443.149,00 € - con una superficie di 119 m2

Foto dell'agenzia FIDIUS BROKER 2

REC ID 1264480

Dettagli