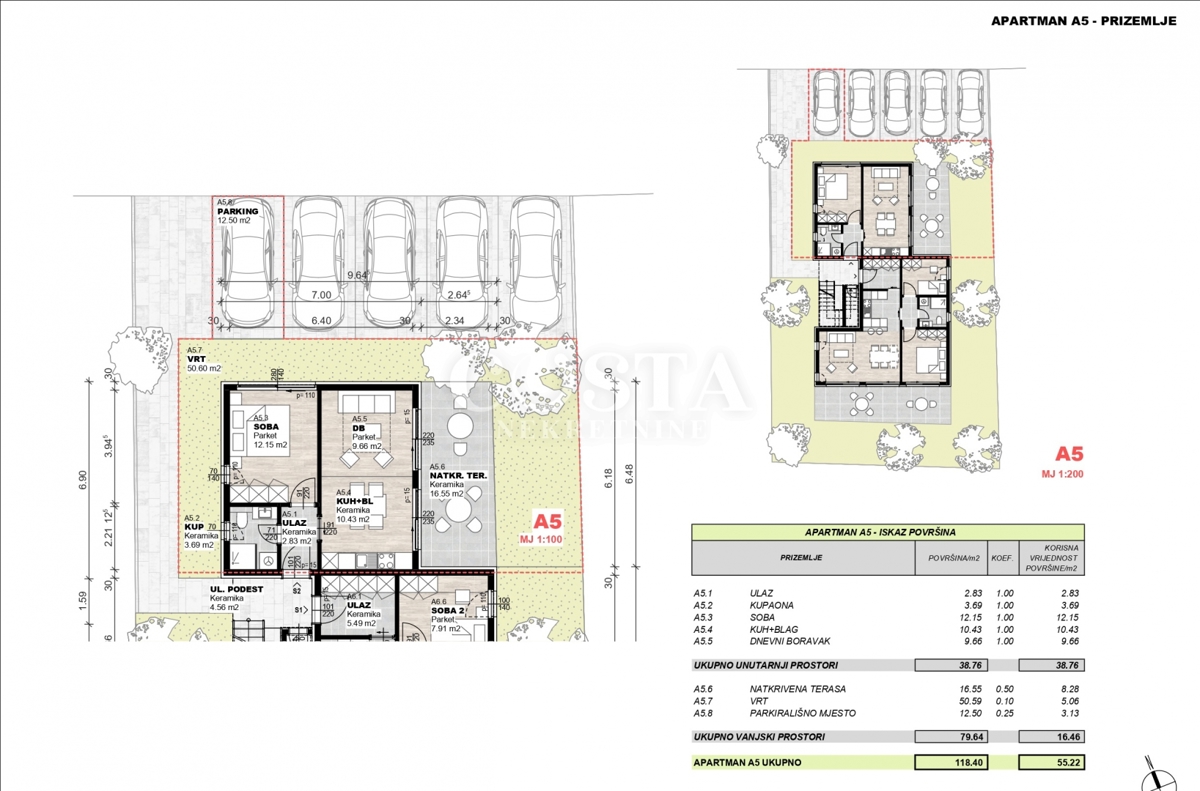
Appartamento in città POVLJANA - con un prezzo di 171.000,00 € - con una superficie di 56 m2

Foto dell'agenzia Costa Nekretnine

REC ID 1257731

Dettagli