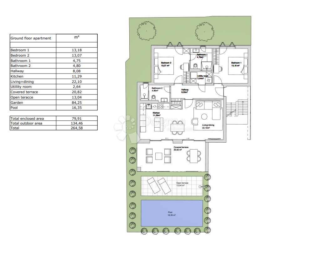
Appartamento in città PRIMOŠTEN - con un prezzo di 580.000,00 € - con una superficie di 97 m2

Foto dell'agenzia Dogma nekretnine d.o.o.

REC ID 1257254

Dettagli