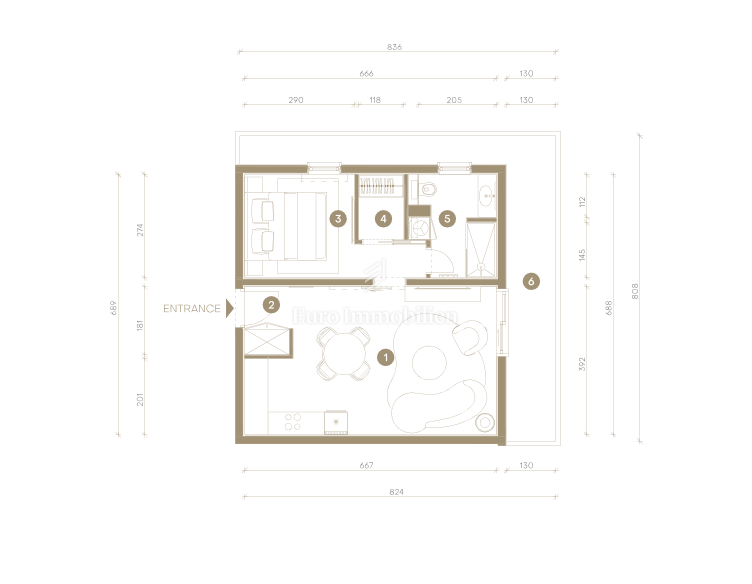
Appartamento in città NOVI VINODOLSKI - con un prezzo di 378.352,00 € - con una superficie di 49 m2

Foto dell'agenzia EURO IMMOBILIEN

REC ID 1254978

Dettagli