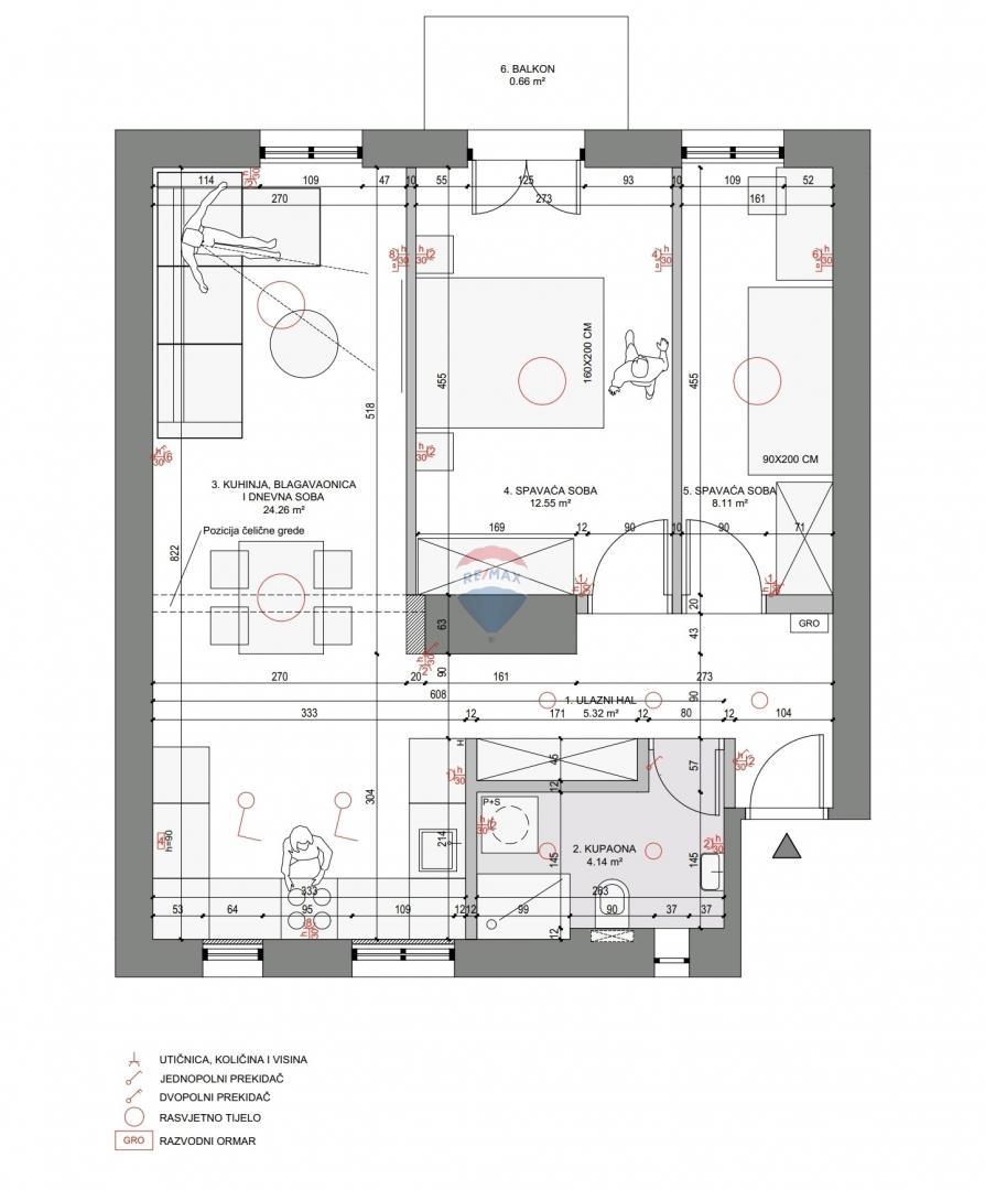
Appartamento in città BELVEDER - con un prezzo di 700,00 € - con una superficie di 48 m2

Foto dell'agenzia Remax Centar nekretnina

REC ID 1254478

Dettagli