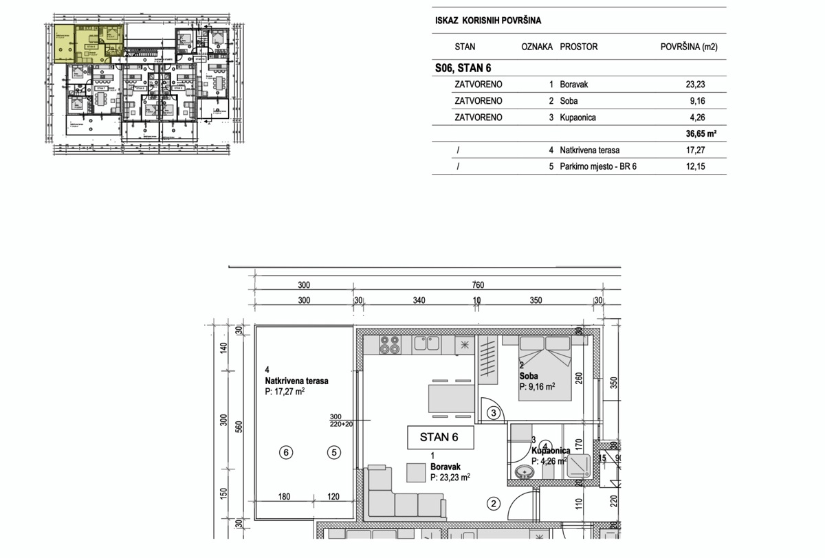
Appartamento in città POVLJANA - con un prezzo di 165.000,00 € - con una superficie di 47 m2

Foto dell'agenzia San Patrik nekretnine

REC ID 1249602

Dettagli