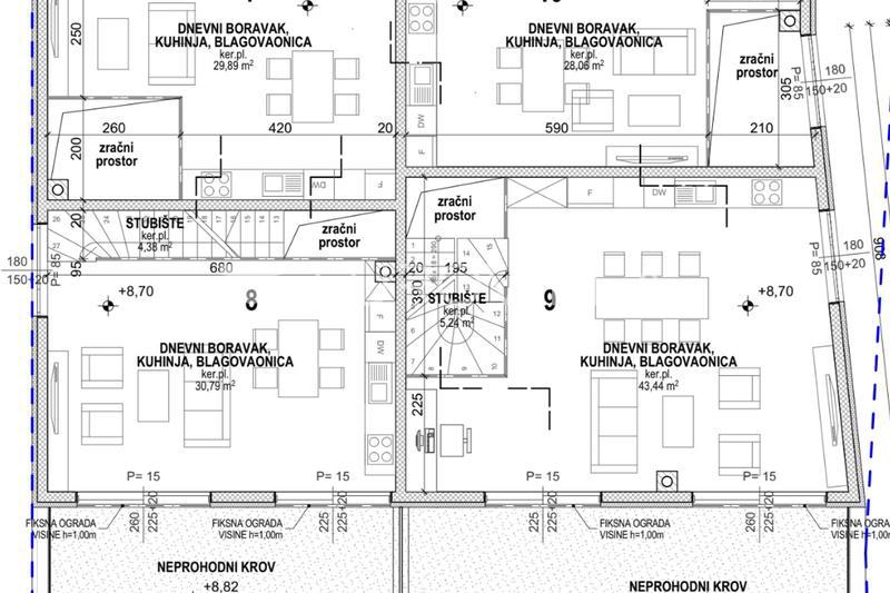
Appartamento in città POVLJANA - con un prezzo di 306.400,00 € - con una superficie di 80 m2

Foto dell'agenzia Eurovilla

REC ID 1248372

Dettagli