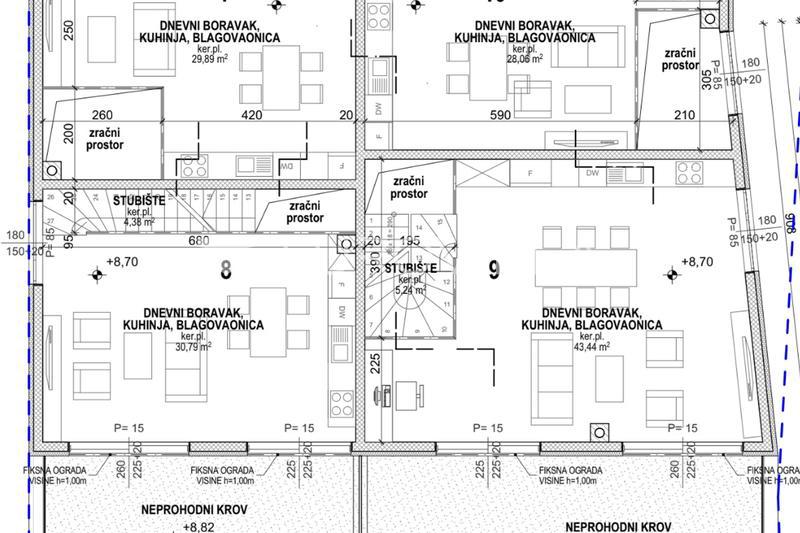
Appartamento in città POVLJANA - con un prezzo di 289.081,00 € - con una superficie di 78 m2

Foto dell'agenzia Eurovilla

REC ID 1248355

Dettagli