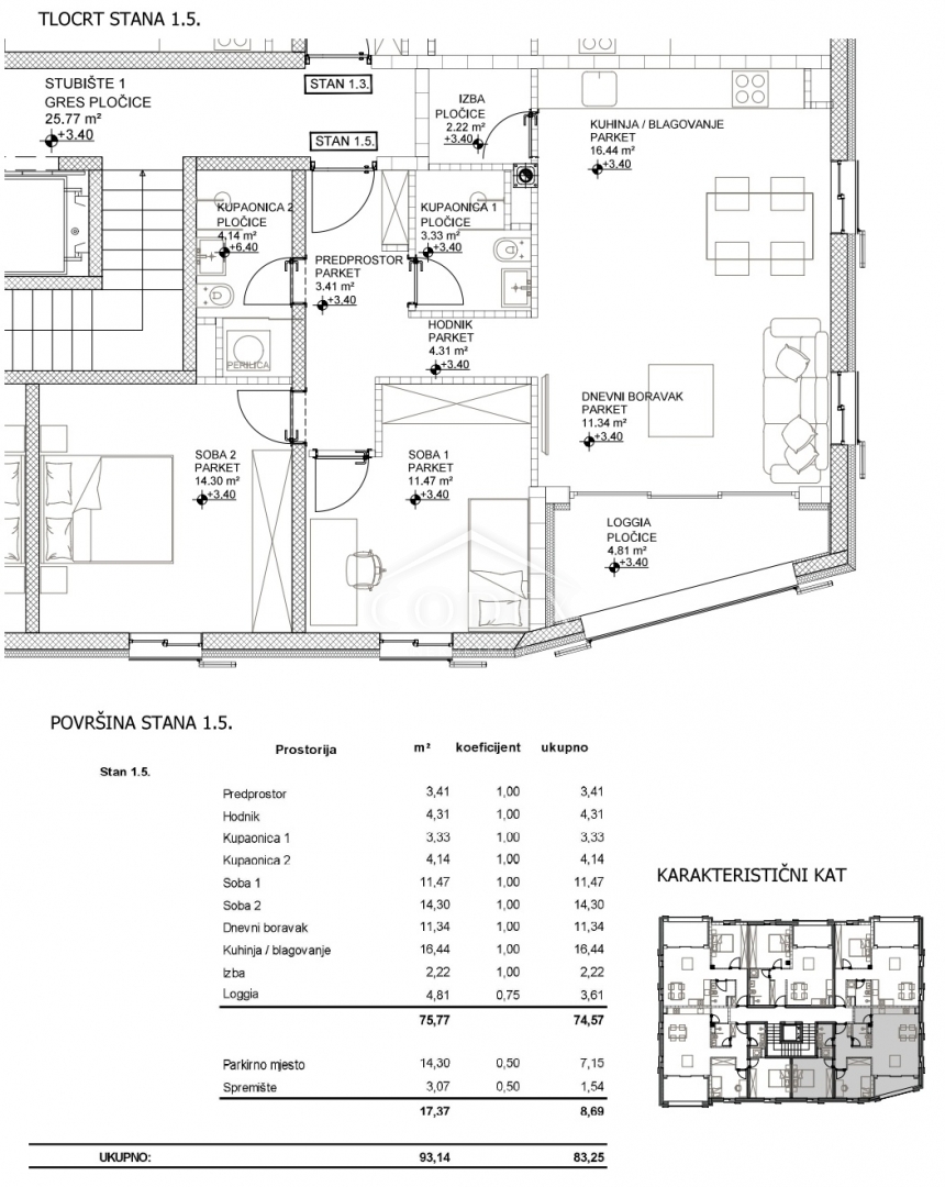
Appartamento in città CRES - con un prezzo di 335.000,00 € - con una superficie di 55 m2

Foto dell'agenzia Codex nekretnine

REC ID 1247235

Dettagli