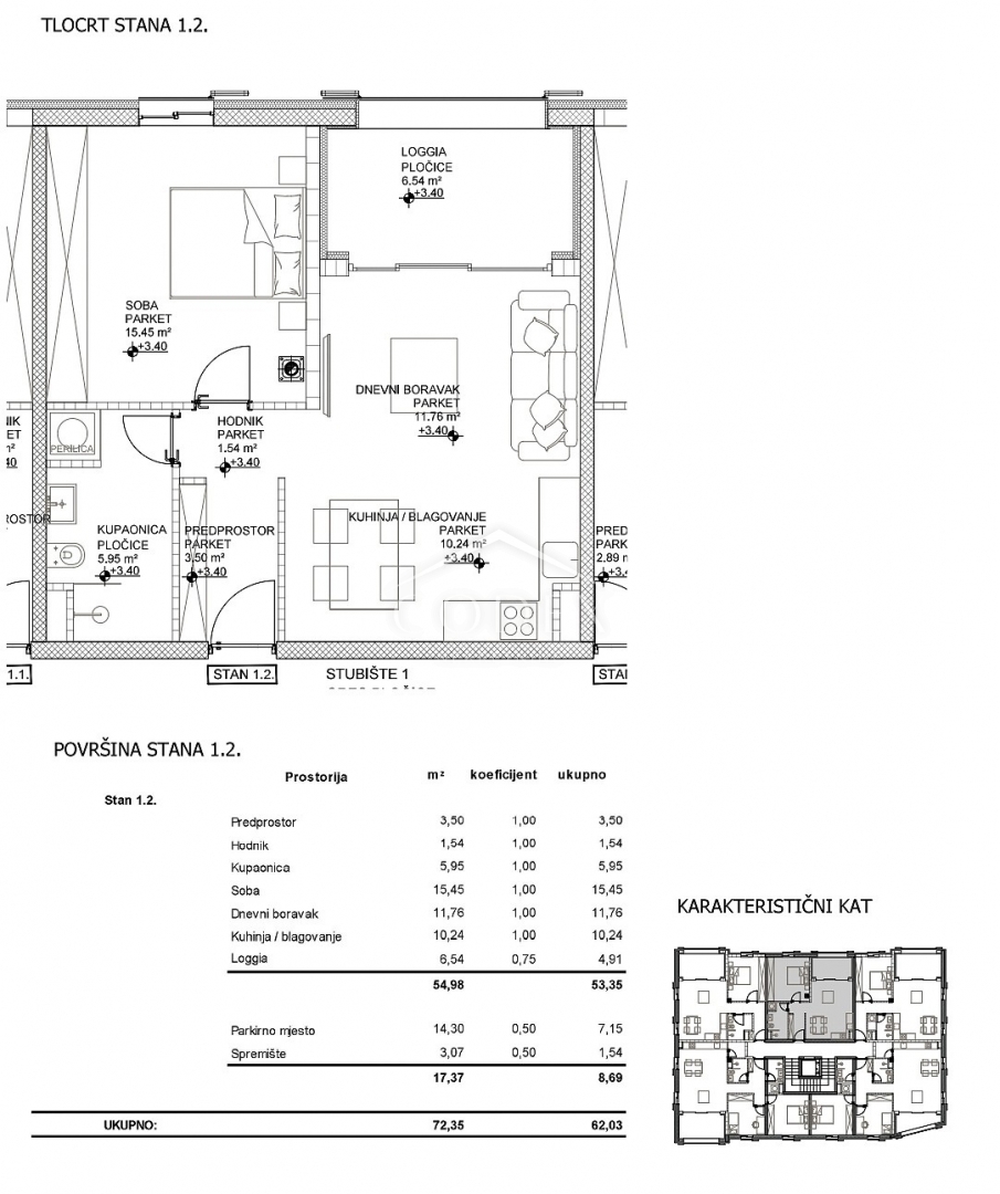
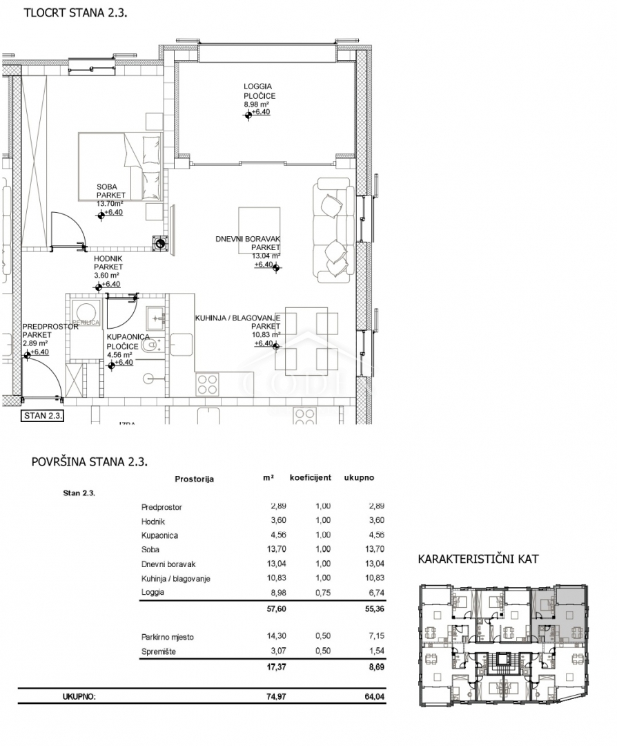
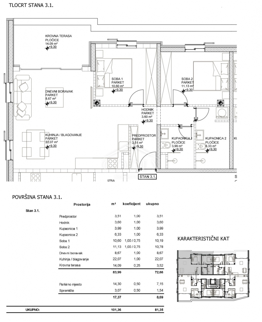
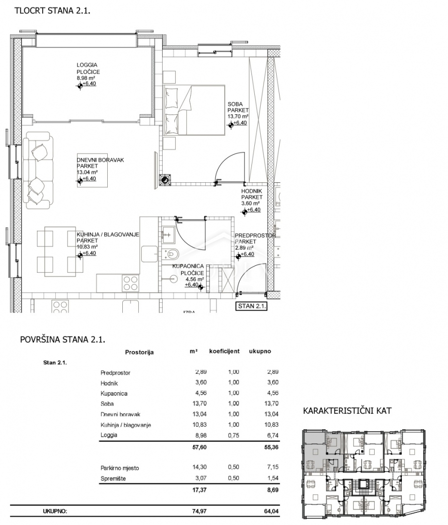
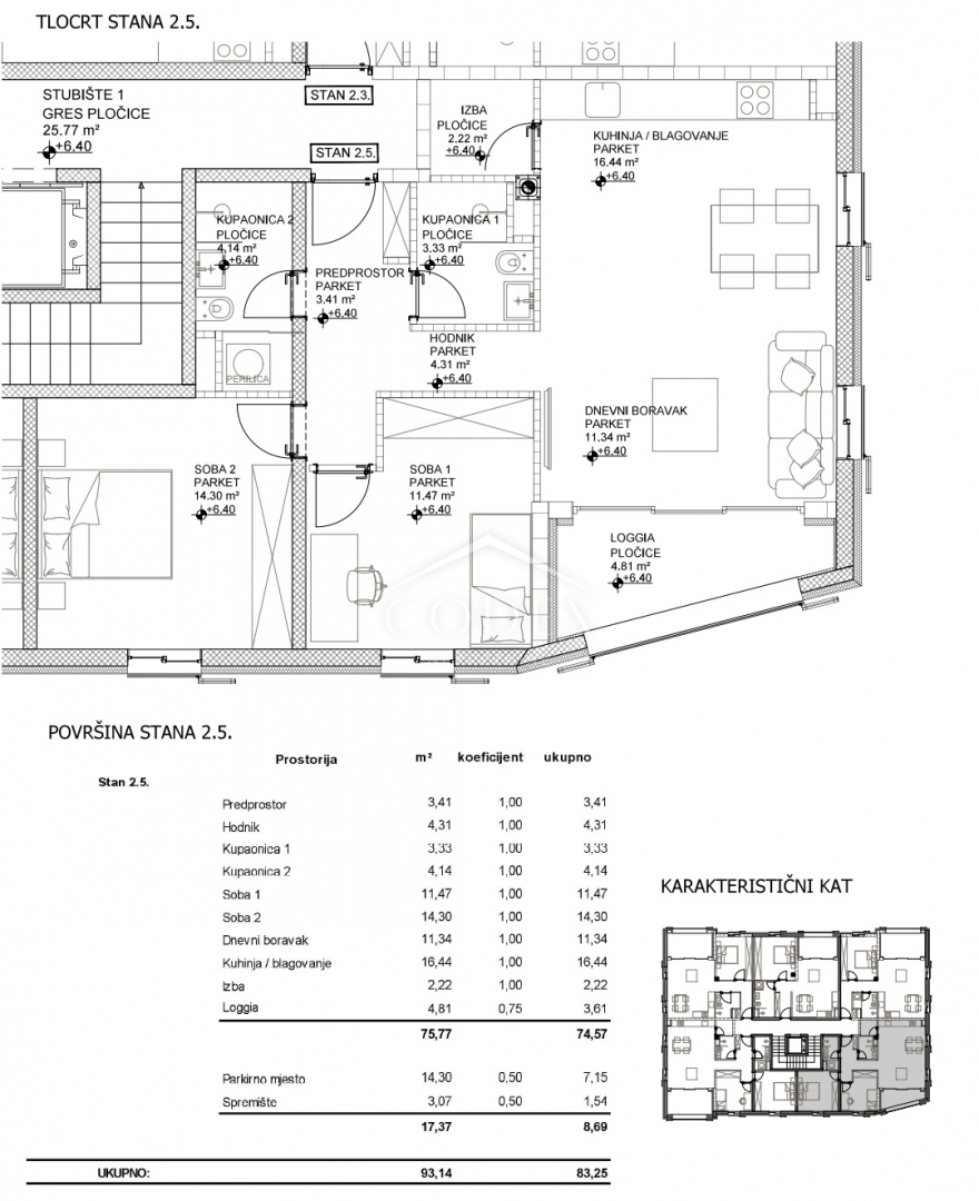
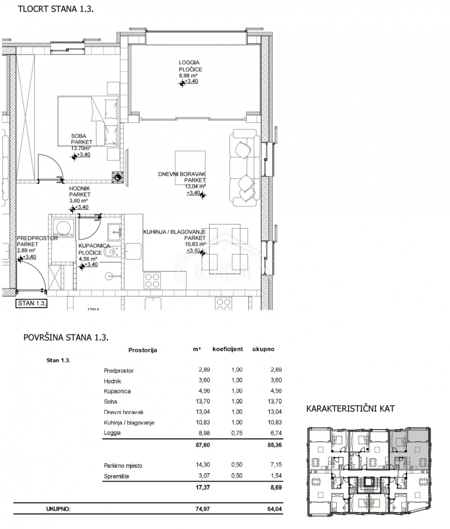
Appartamento in città CRES - con un prezzo di 325.000,00 € - con una superficie di 53 m2

Foto dell'agenzia Codex nekretnine

REC ID 1247232

Dettagli