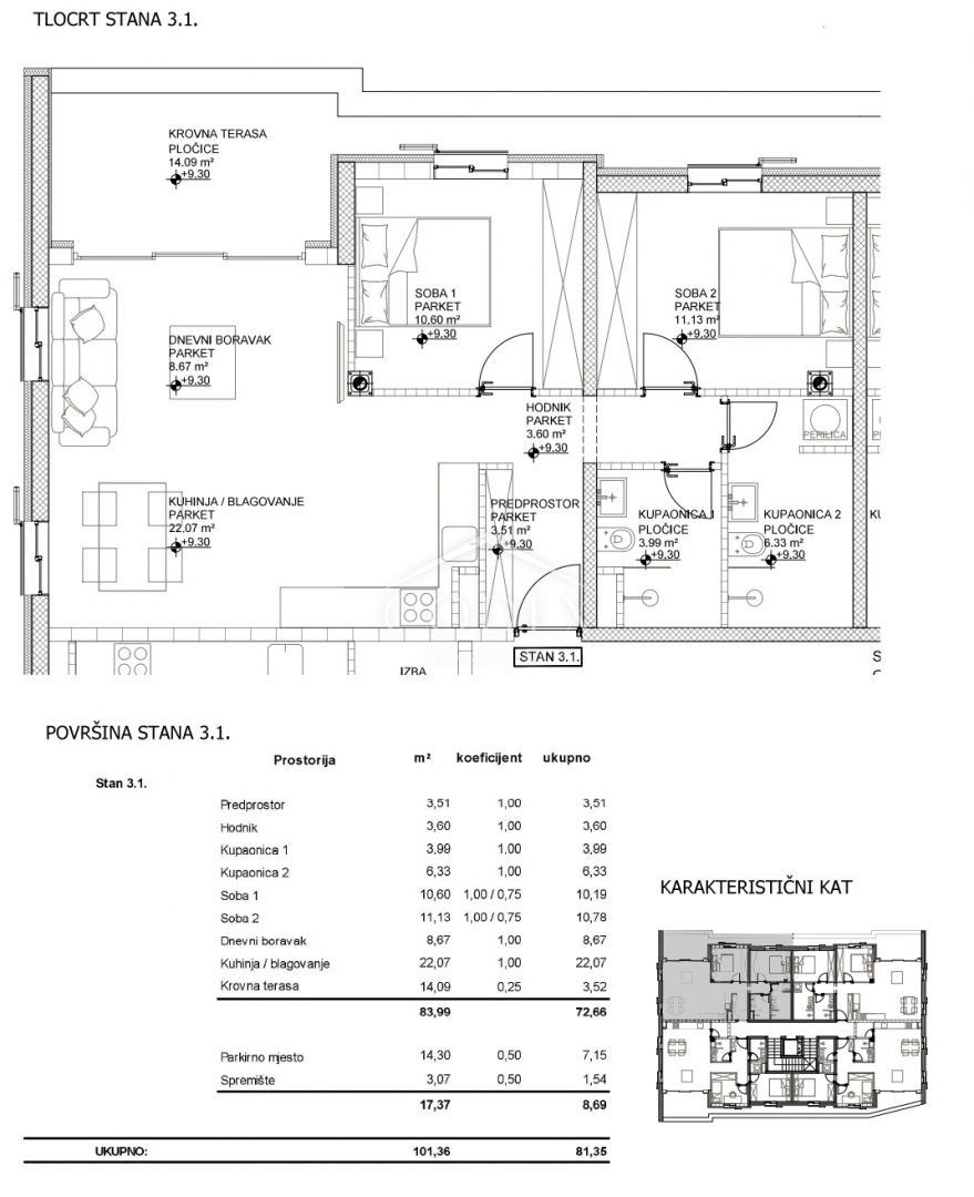
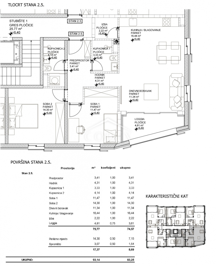
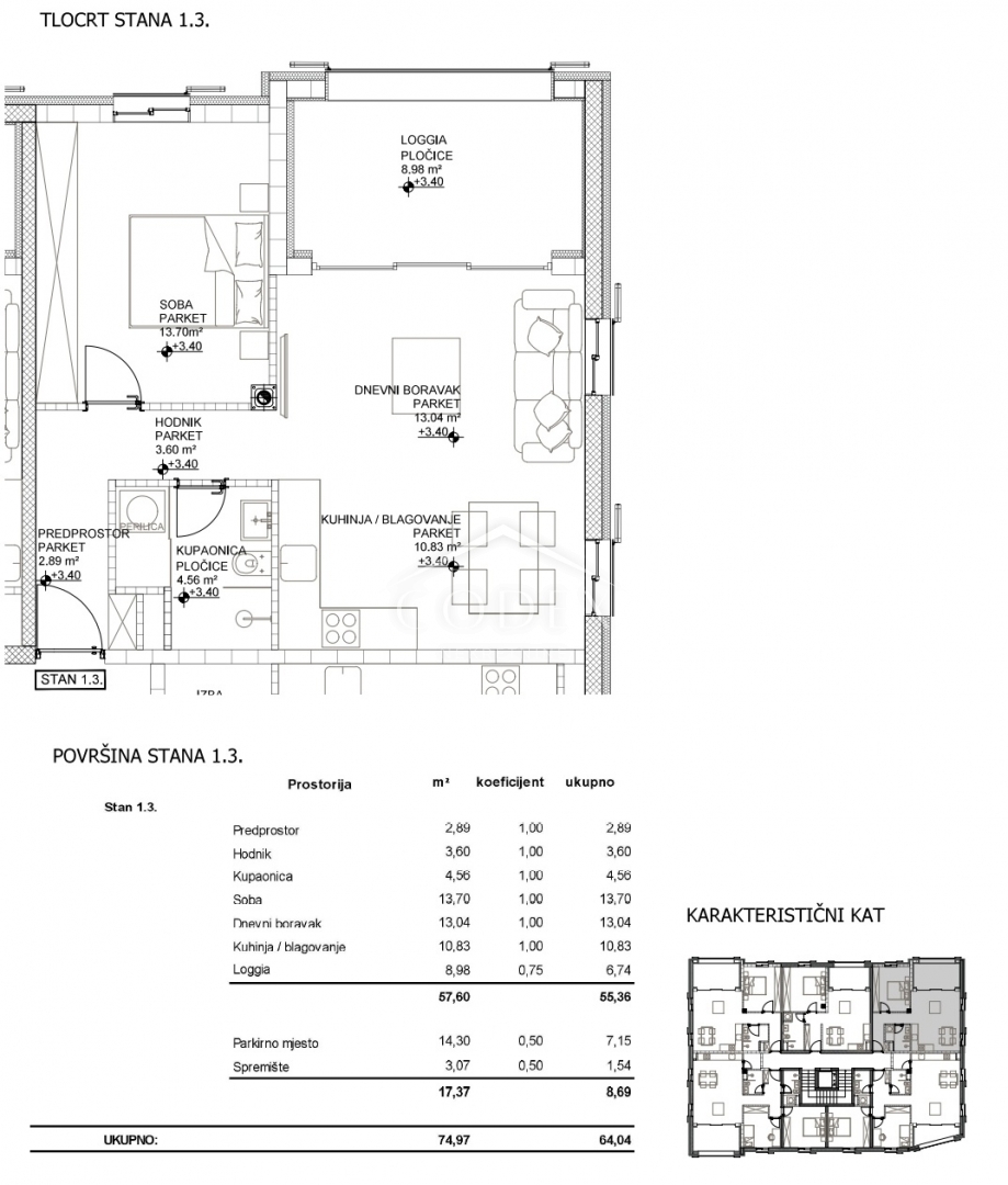
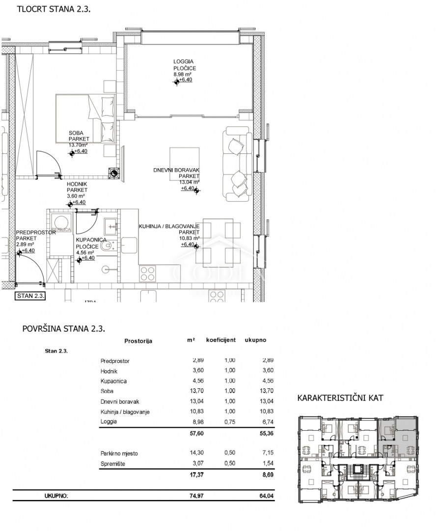
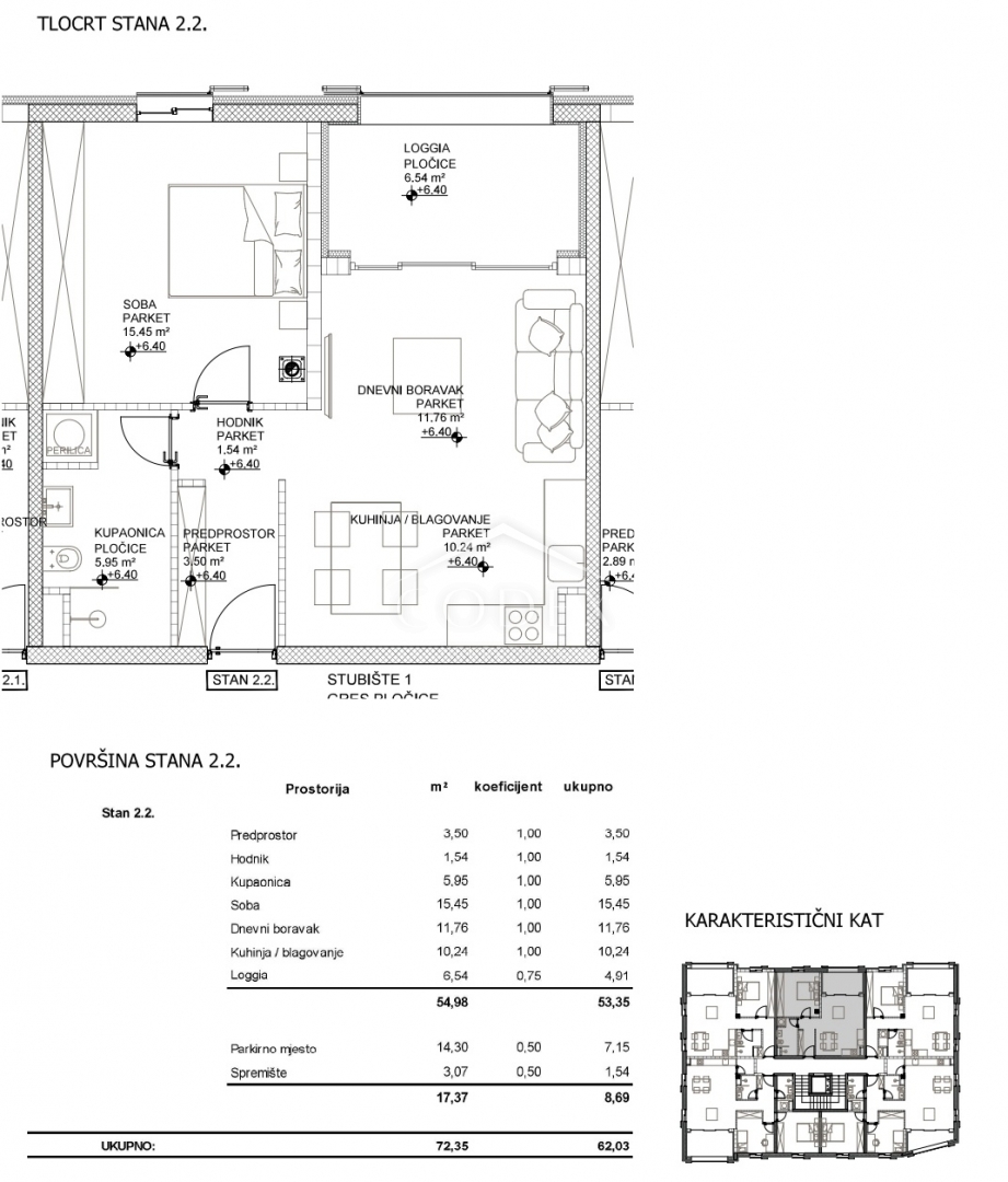
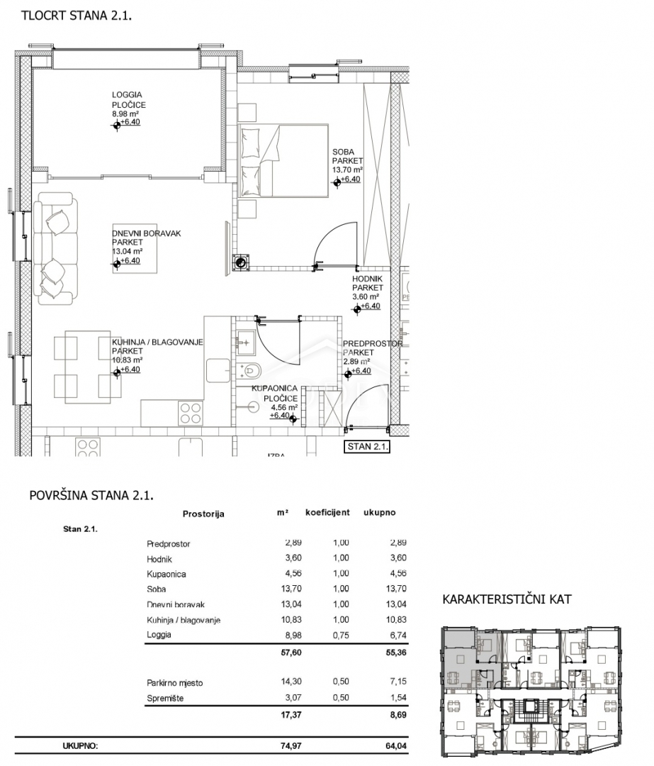
Appartamento in città CRES - con un prezzo di 449.000,00 € - con una superficie di 74 m2

Foto dell'agenzia Codex nekretnine

REC ID 1247230

Dettagli