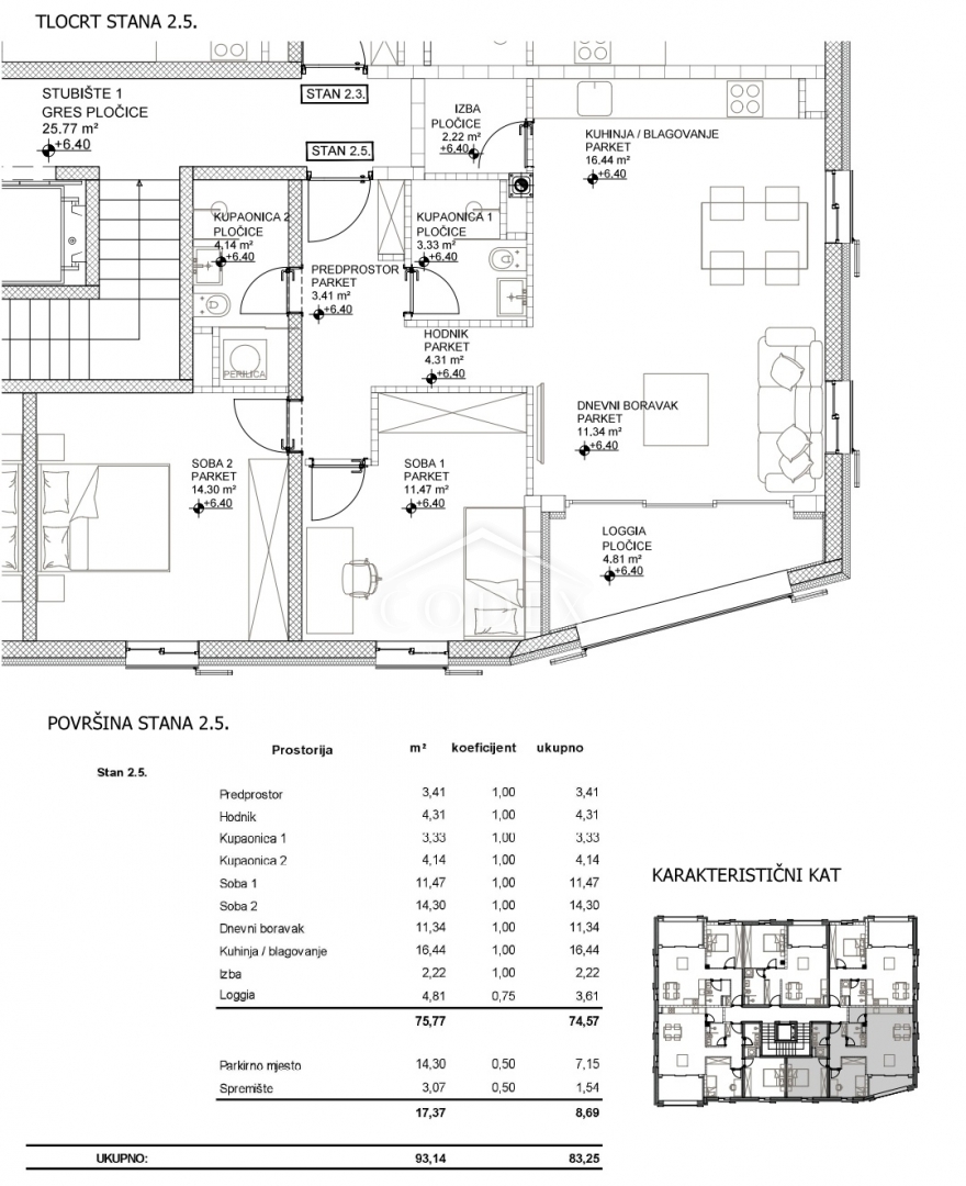
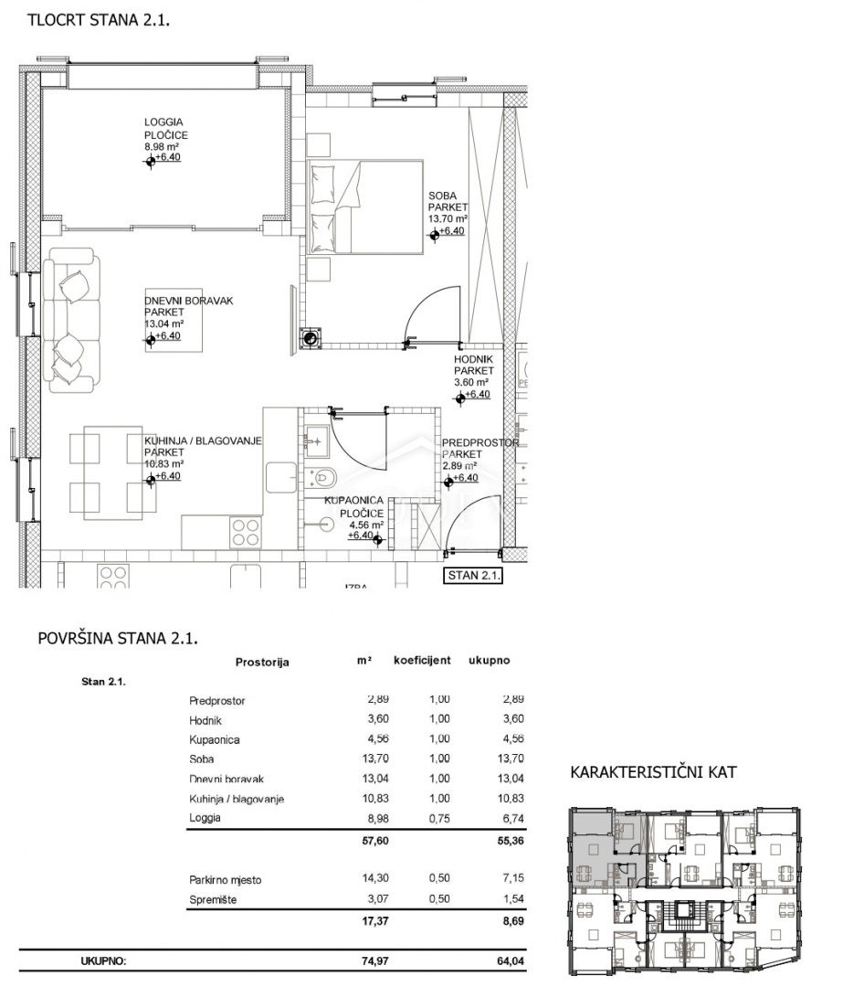
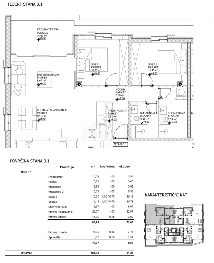
Appartamento in città CRES - con un prezzo di 428.000,00 € - con una superficie di 72 m2

Foto dell'agenzia Codex nekretnine

REC ID 1247228

Dettagli