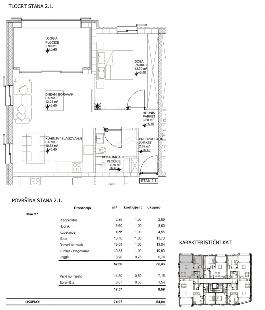
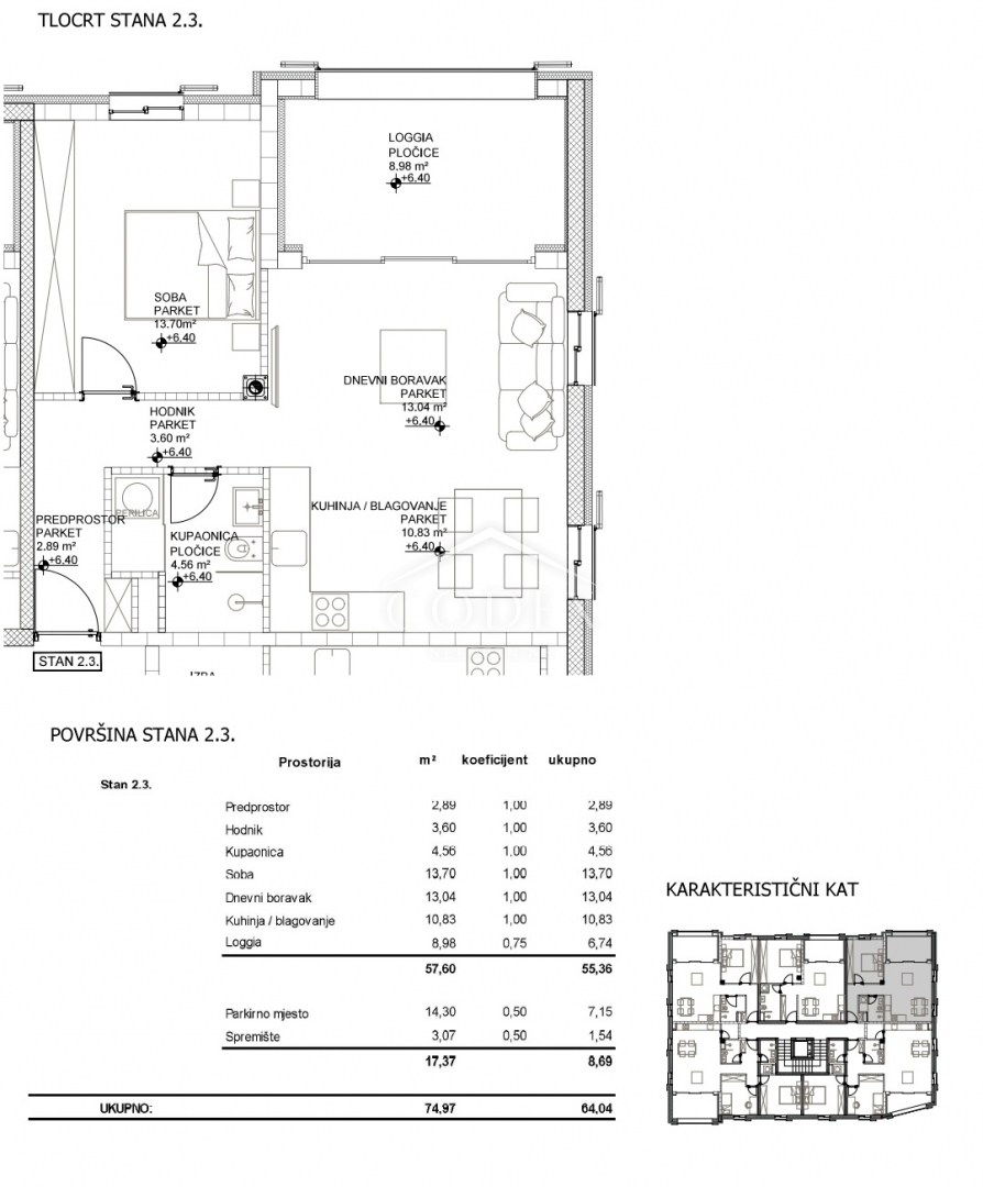
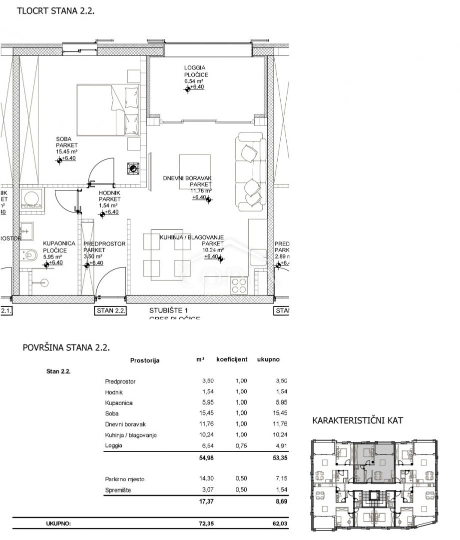
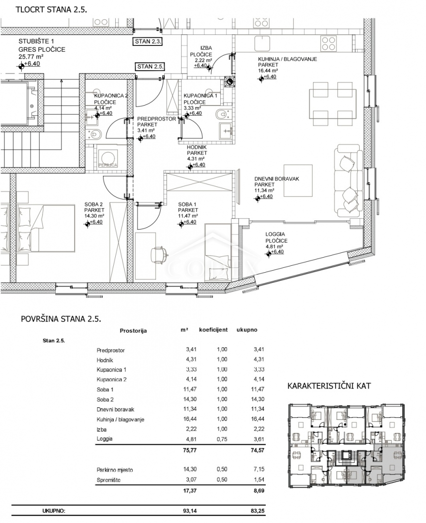
Appartamento in città CRES - con un prezzo di 423.000,00 € - con una superficie di 66 m2

Foto dell'agenzia Codex nekretnine

REC ID 1247227

Dettagli