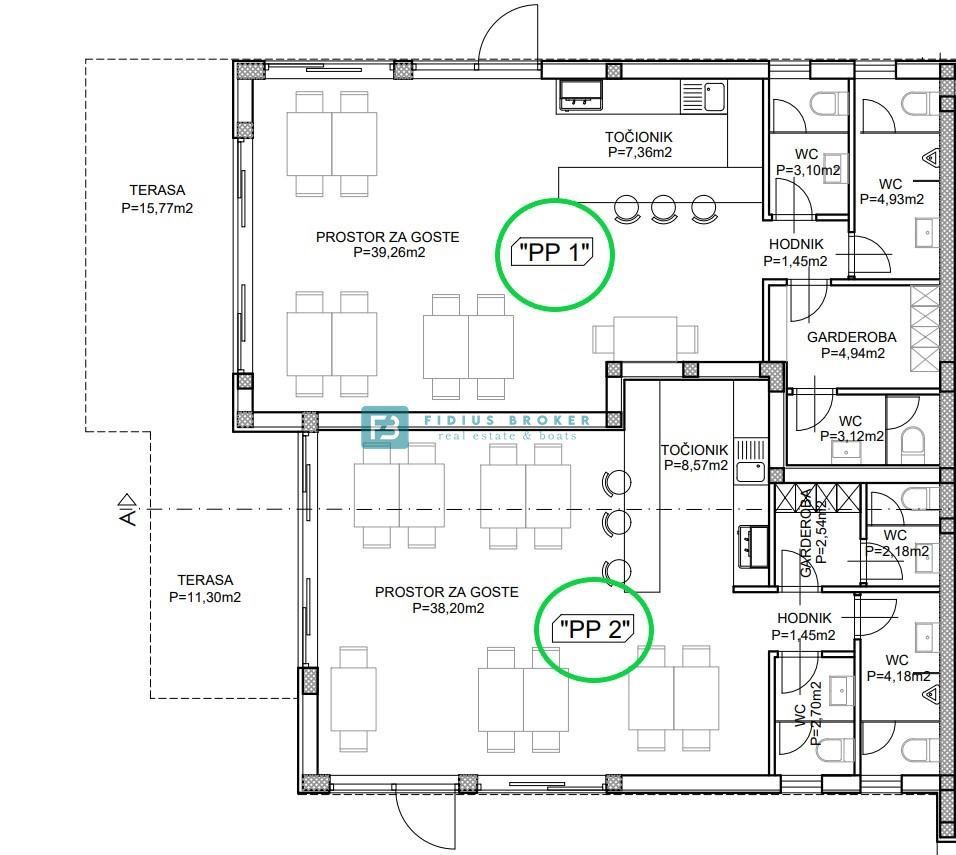
Locale commerciale in città SRIMA - con un prezzo di 779.000,00 € - con una superficie di 194 m2

Foto dell'agenzia FIDIUS BROKER 2

REC ID 1245027

Dettagli