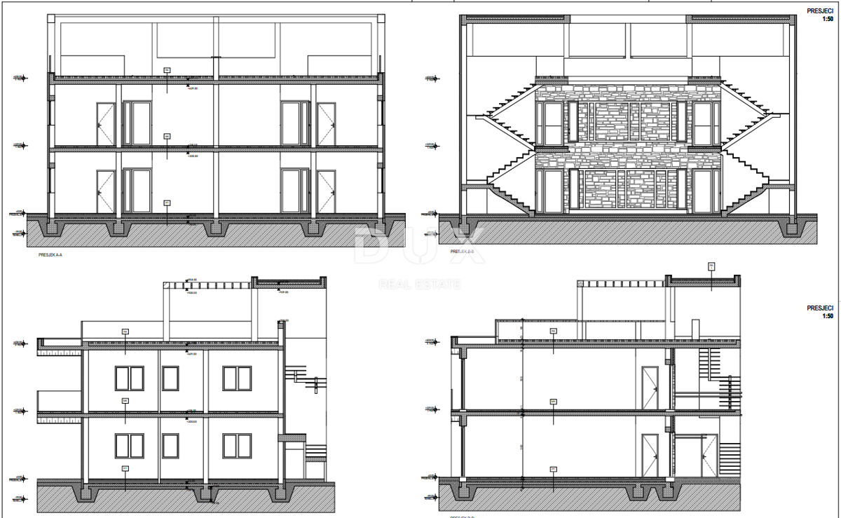
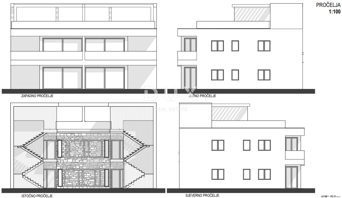
Appartamento in città VABRIGA - con un prezzo di 625.000,00 € - con una superficie di 104 m2

Foto dell'agenzia DUX Nekretnine

REC ID 1243928

Dettagli