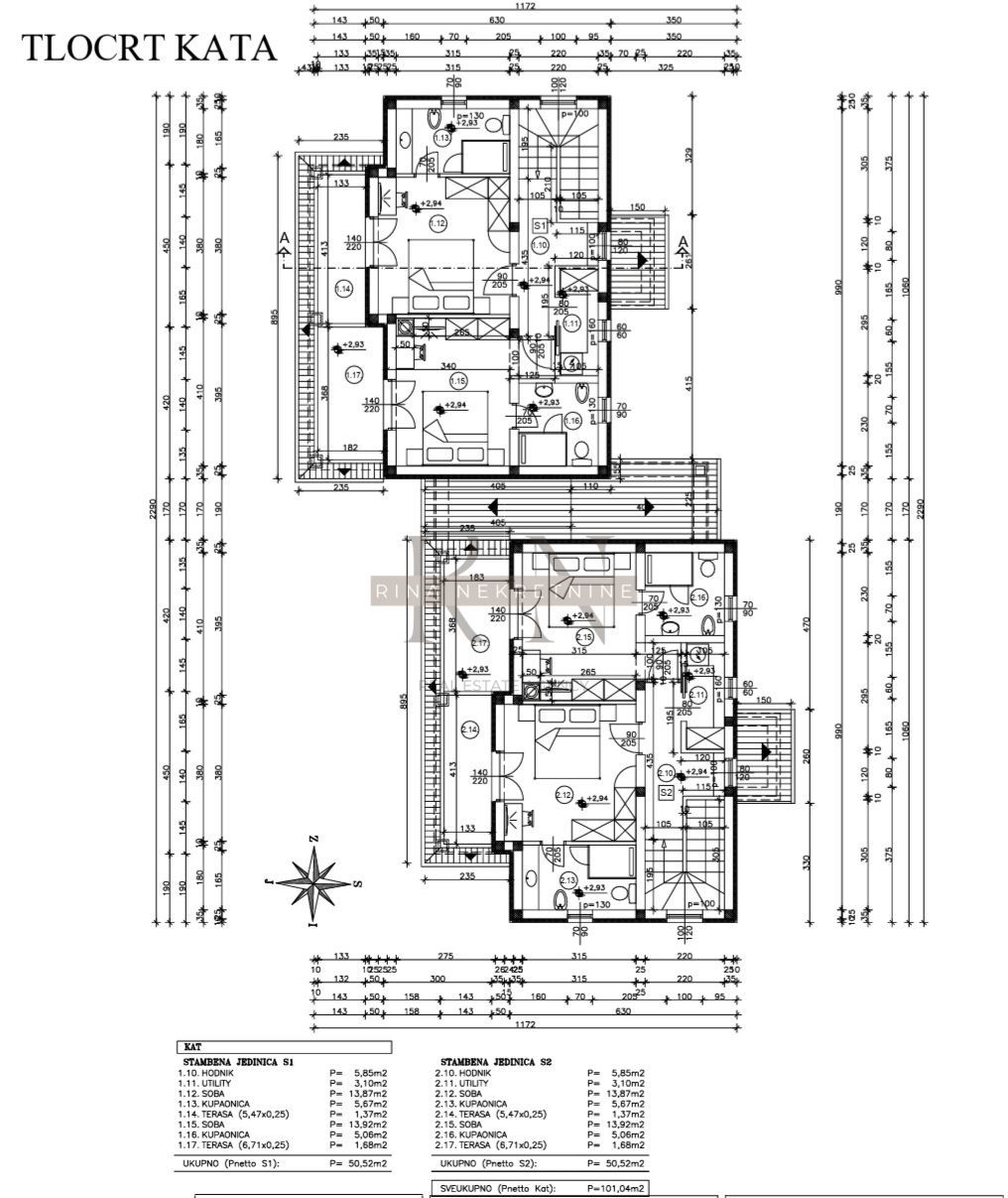
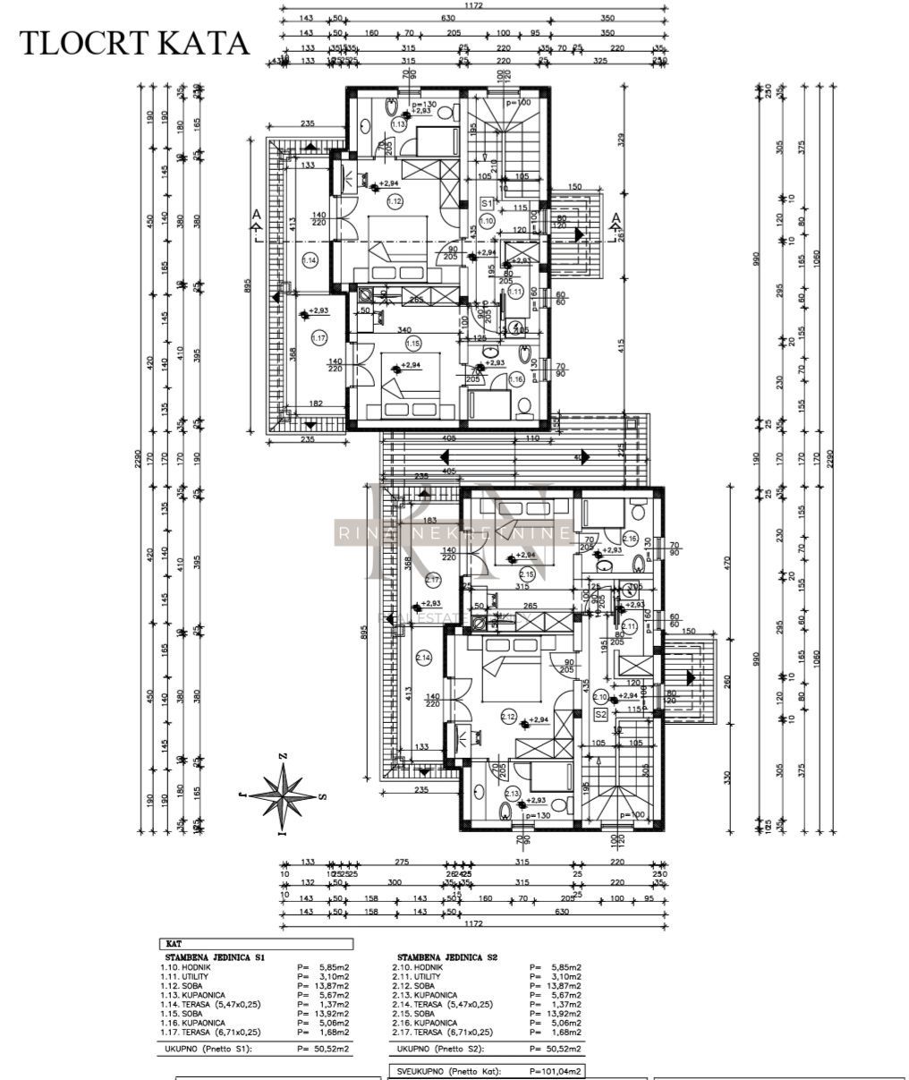
Casa in città POREČ - con un prezzo di 450.000,00 € - con una superficie di 136 m2

Foto dell'agenzia Rina Nekretnine

REC ID 1243657

Dettagli