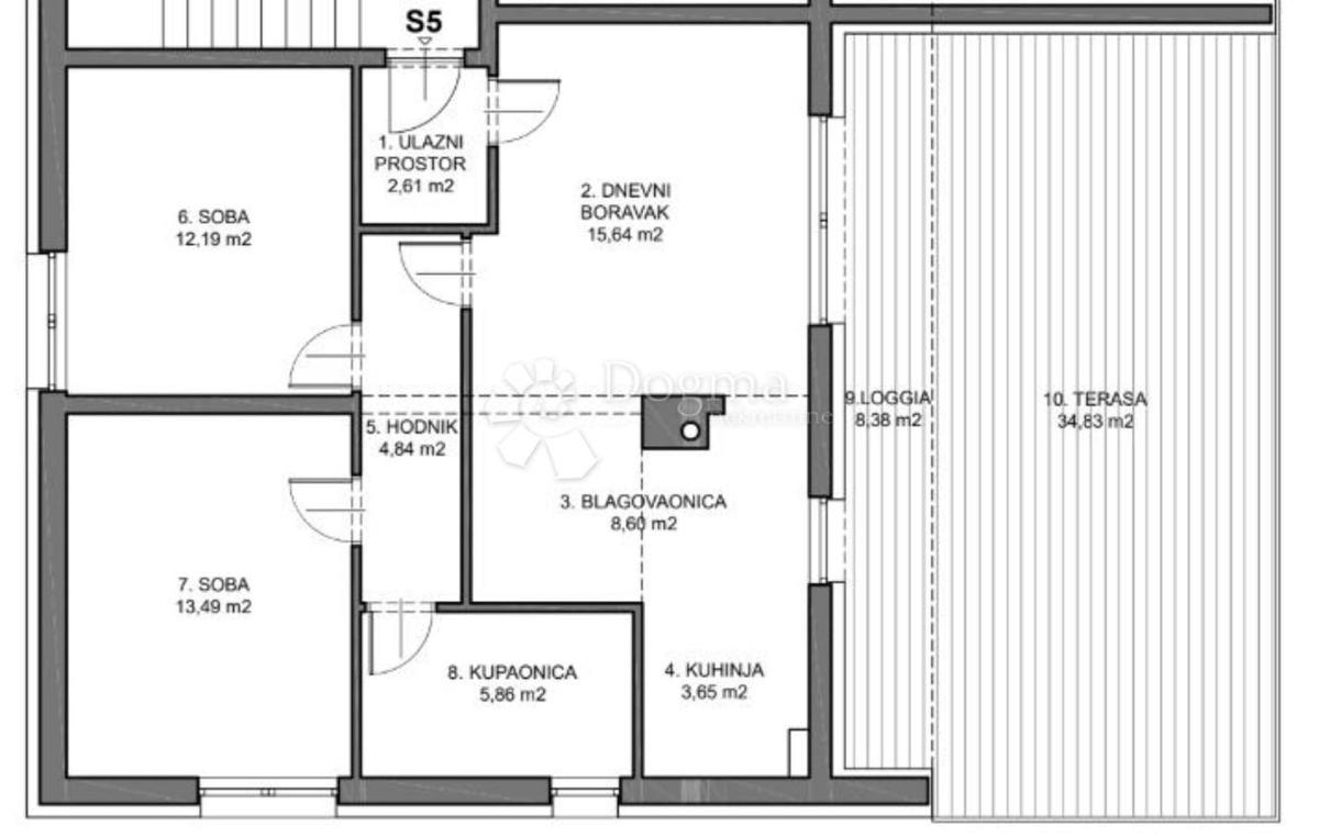
Appartamento in città OPOROVEC - con un prezzo di 340.000,00 € - con una superficie di 87 m2

Foto dell'agenzia Dogma nekretnine d.o.o.

REC ID 1241437

Dettagli