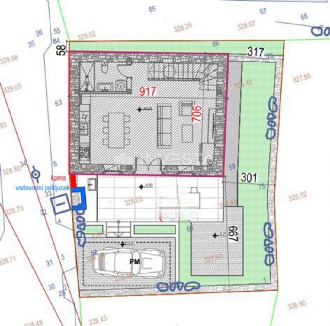
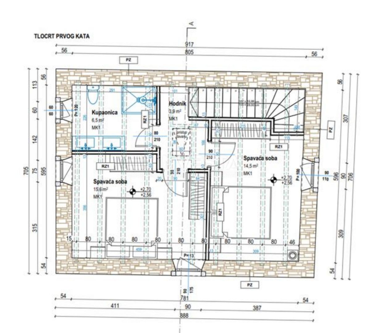
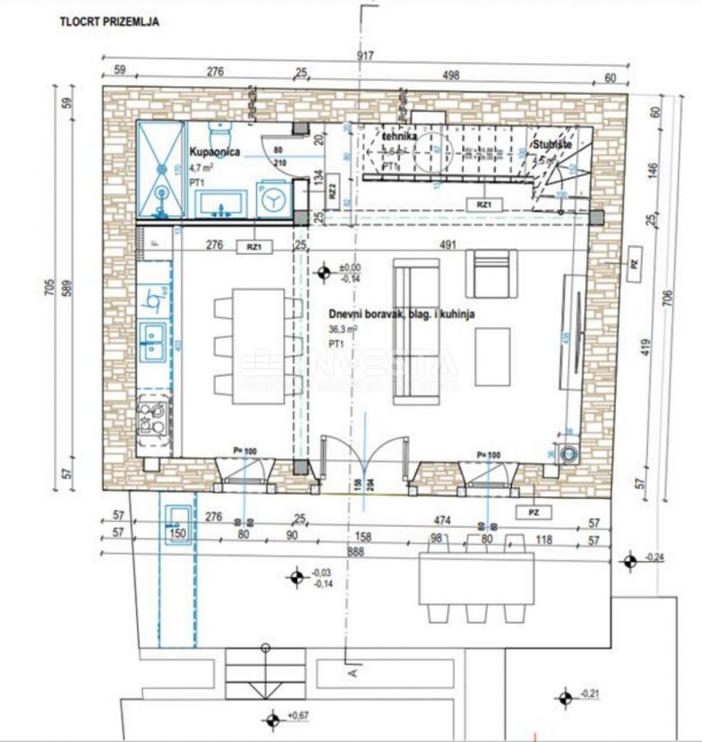
Casa in città TINJAN - con un prezzo di 215.000,00 € - con una superficie di 82 m2

Foto dell'agenzia INVESTA Real Estate

REC ID 1240573

Dettagli