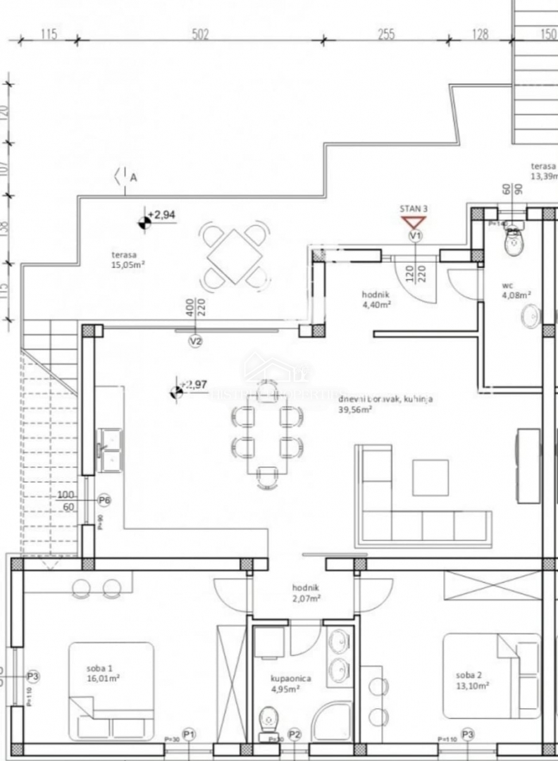
Appartamento in città POREČ - con un prezzo di 350.000,00 € - con una superficie di 88 m2

Foto dell'agenzia Histria Properties

REC ID 1239153

Dettagli