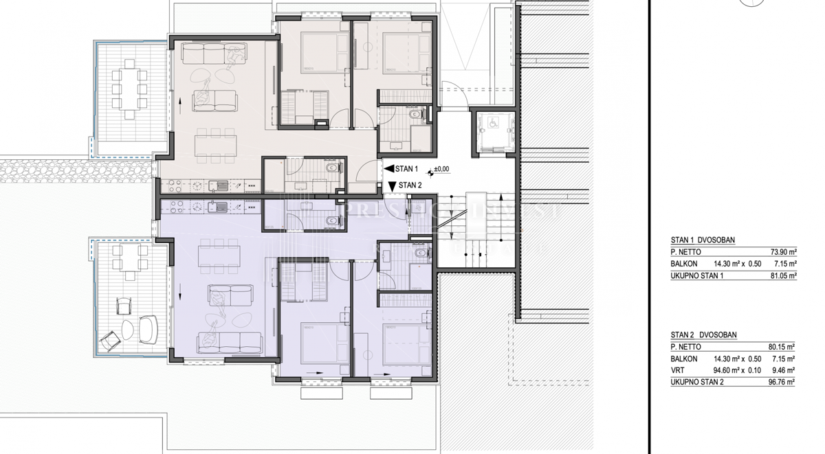
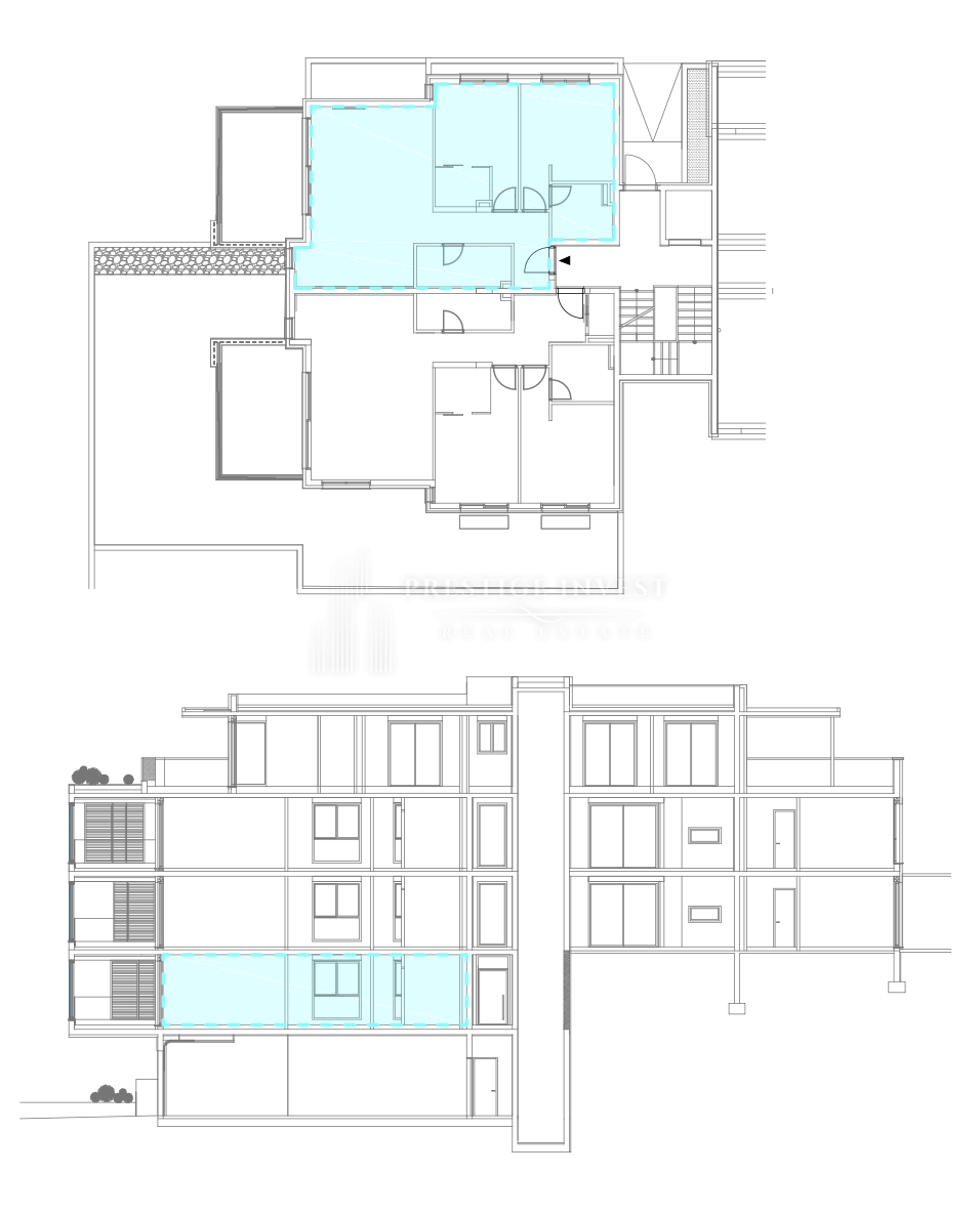
Appartamento in città PRIMOŠTEN - con un prezzo di 421.460,00 € - con una superficie di 81 m2

Foto dell'agenzia Prestige Invest

REC ID 1238995

Dettagli