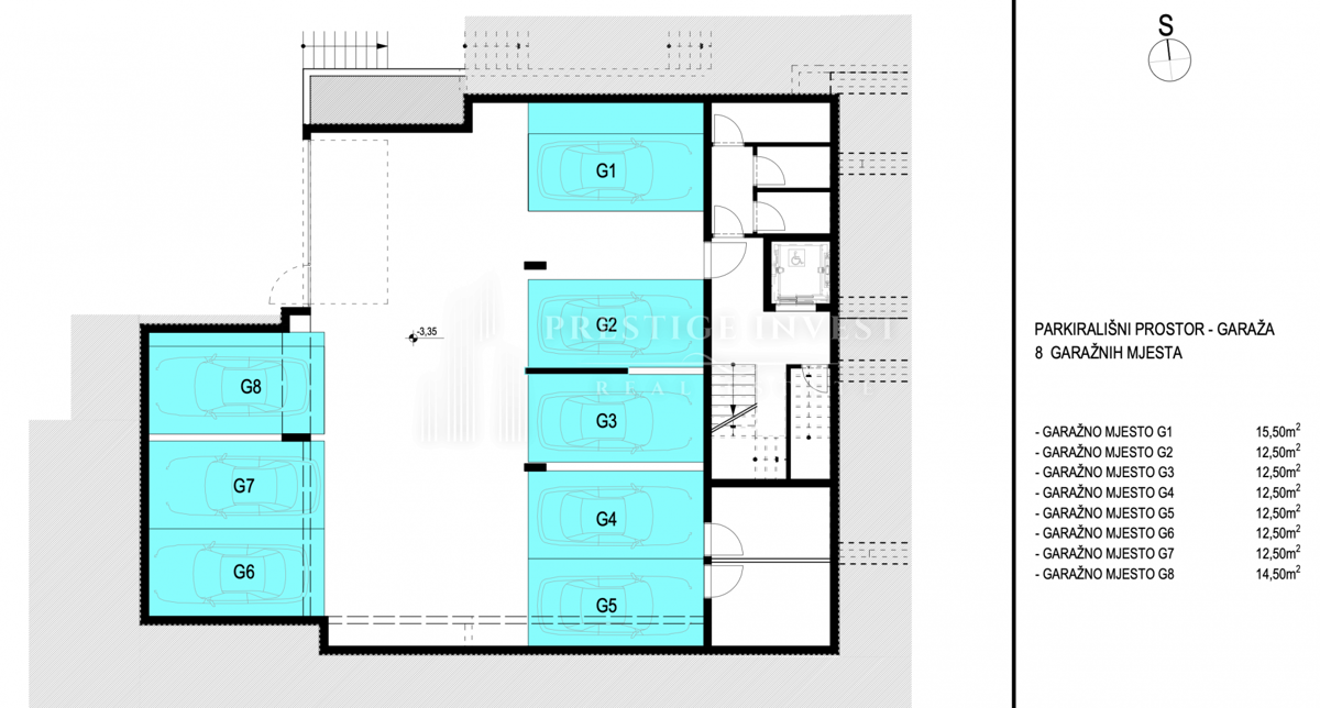
Appartamento in città PRIMOŠTEN - con un prezzo di 515.070,00 € - con una superficie di 87 m2

Foto dell'agenzia Prestige Invest

REC ID 1238992

Dettagli