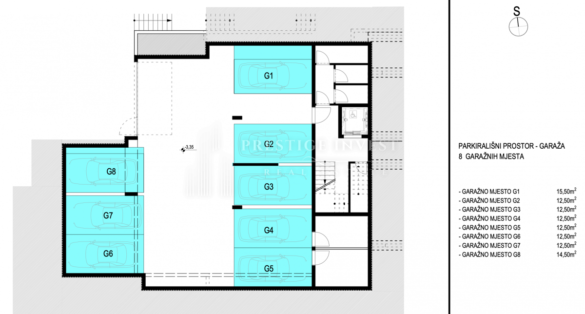
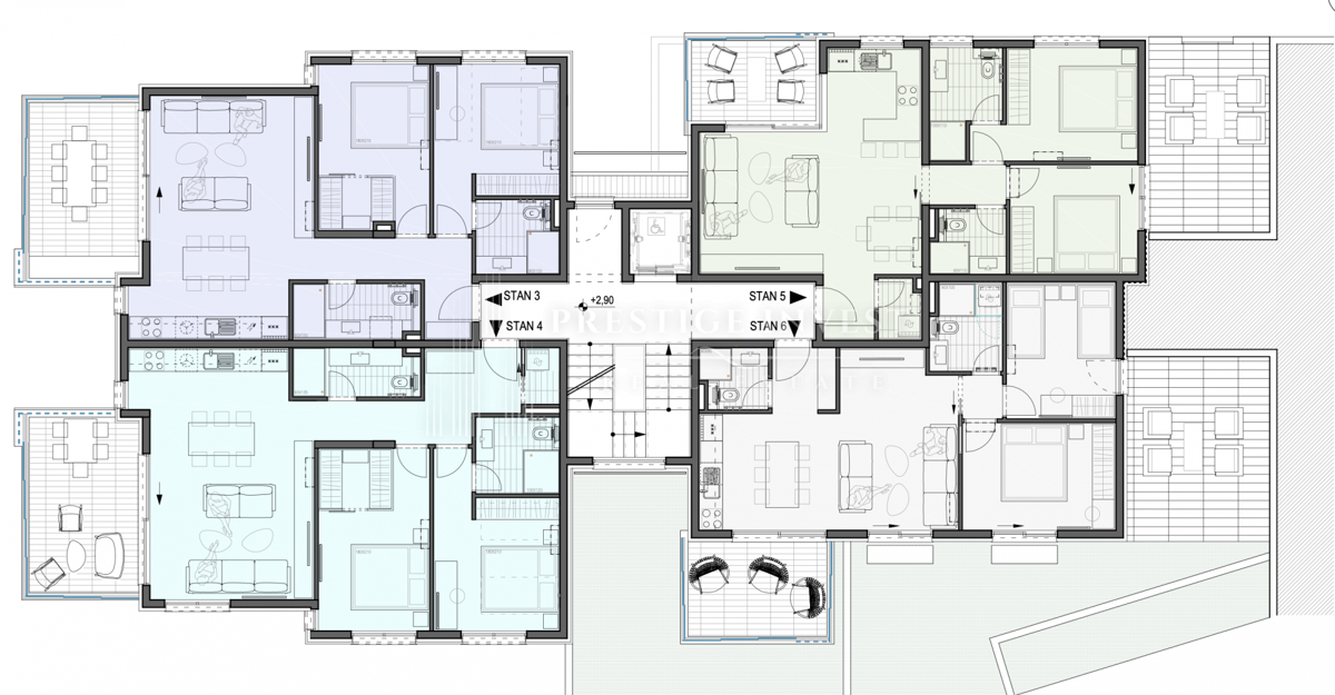
Appartamento in città PRIMOŠTEN - con un prezzo di 379.860,00 € - con una superficie di 73 m2

Foto dell'agenzia Prestige Invest

REC ID 1238991

Dettagli