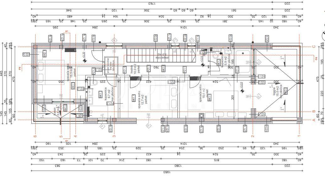
Casa in città BAŠKA - con un prezzo di 955.000,00 € - con una superficie di 213 m2

Foto dell'agenzia jo-da nekretnine d.o.o.

REC ID 1230408

Dettagli