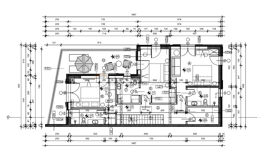
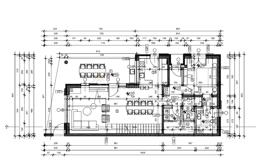
Casa in città MIHOLAŠĆICA - con un prezzo di 1.545.000,00 € - con una superficie di 268 m2

Foto dell'agenzia T.O.P.A. SOBOL

REC ID 1230007

Dettagli