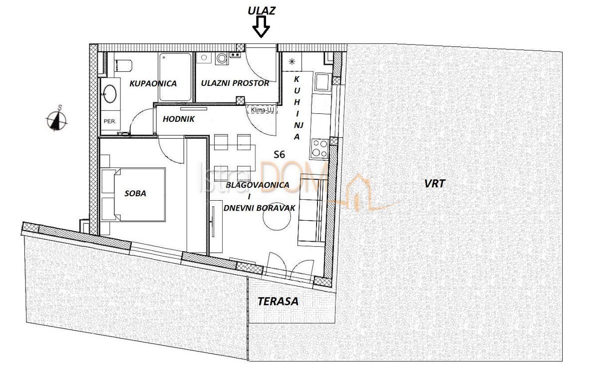
Appartamento in città SVETI IVAN ZELINA - con un prezzo di 149.032,00 € - con una superficie di 57 m2

Foto dell'agenzia Istradom

REC ID 1229103

Dettagli