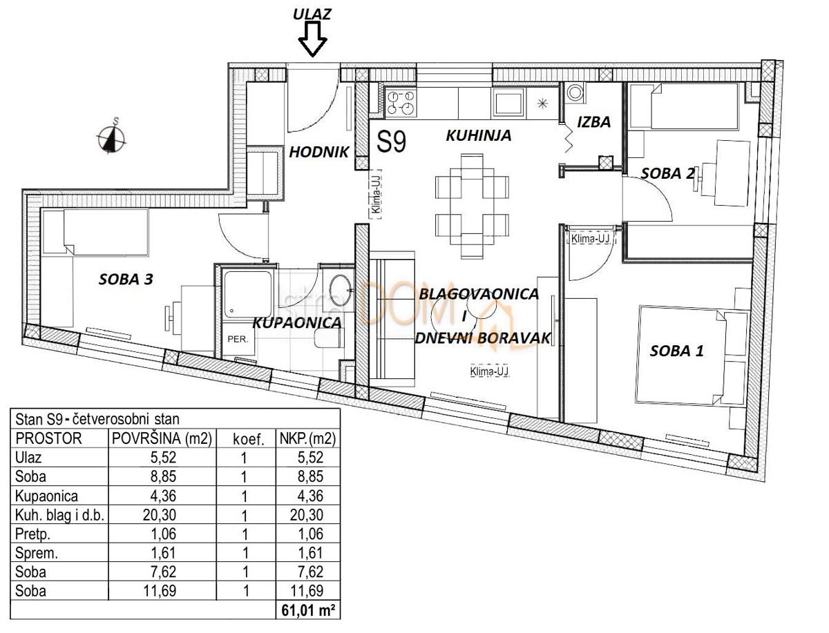
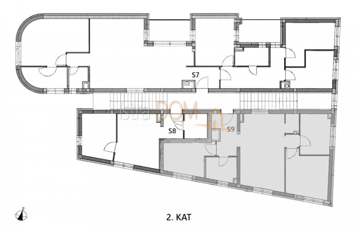
Appartamento in città SVETI IVAN ZELINA - con un prezzo di 174.512,00 € - con una superficie di 67 m2

Foto dell'agenzia Istradom

REC ID 1229100

Dettagli