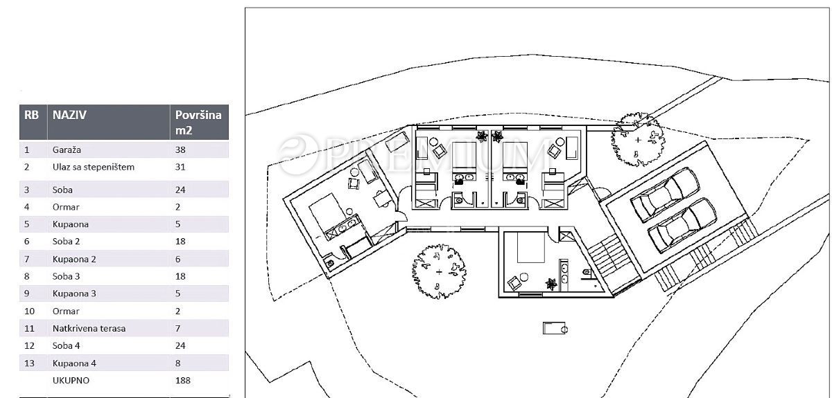
Casa in città VRBNIK - con un prezzo di 1.560.000,00 € - con una superficie di 410 m2

Foto dell'agenzia PREMIUM nekretnine

REC ID 1226155

Dettagli