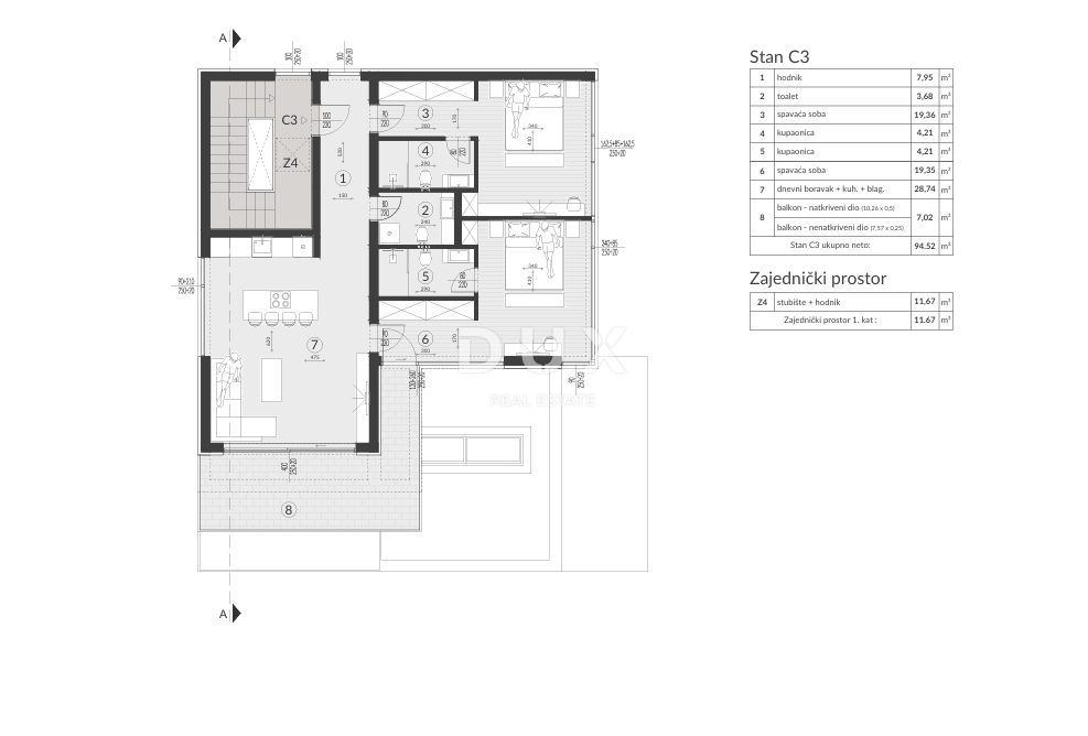
Appartamento in città MEDULIN - con un prezzo di 520.000,00 € - con una superficie di 94 m2

Foto dell'agenzia DUX Nekretnine

REC ID 1224820

Dettagli