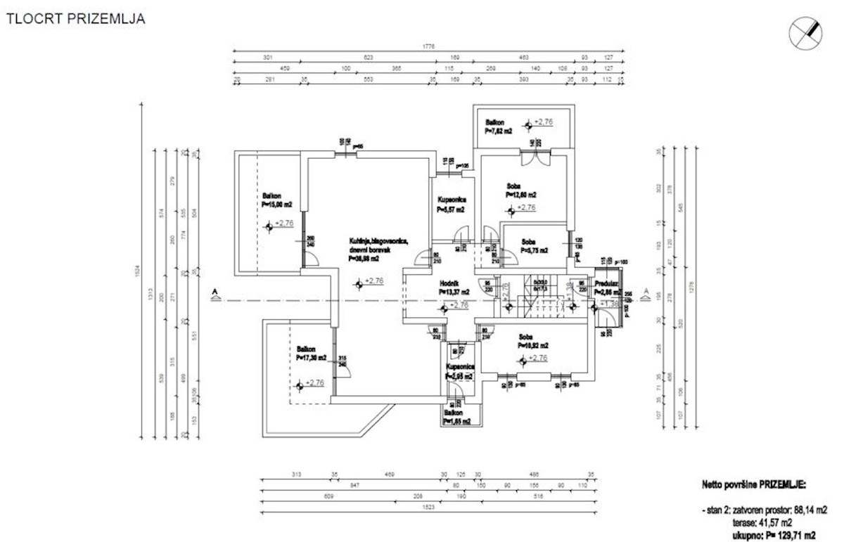
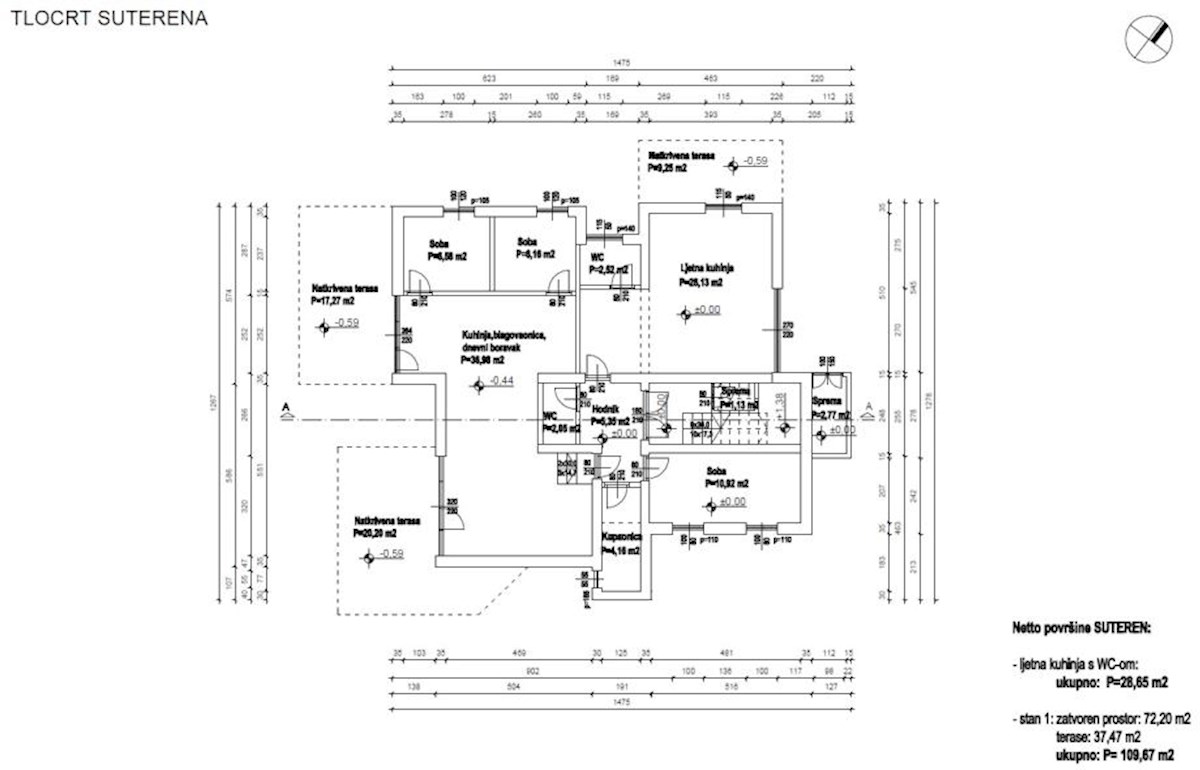
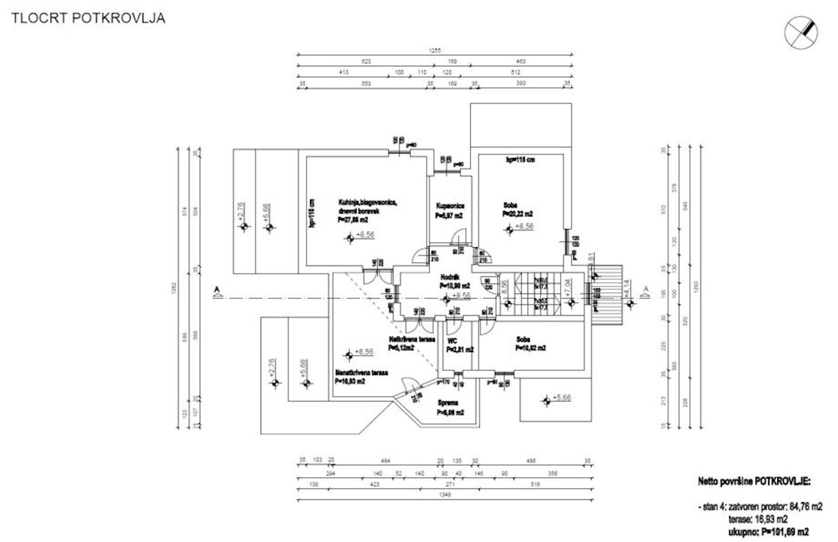
Casa in città PODSTRANA - con un prezzo di 1.190.000,00 € - con una superficie di 466 m2

Foto dell'agenzia adriaINgroup

REC ID 1203999

Dettagli