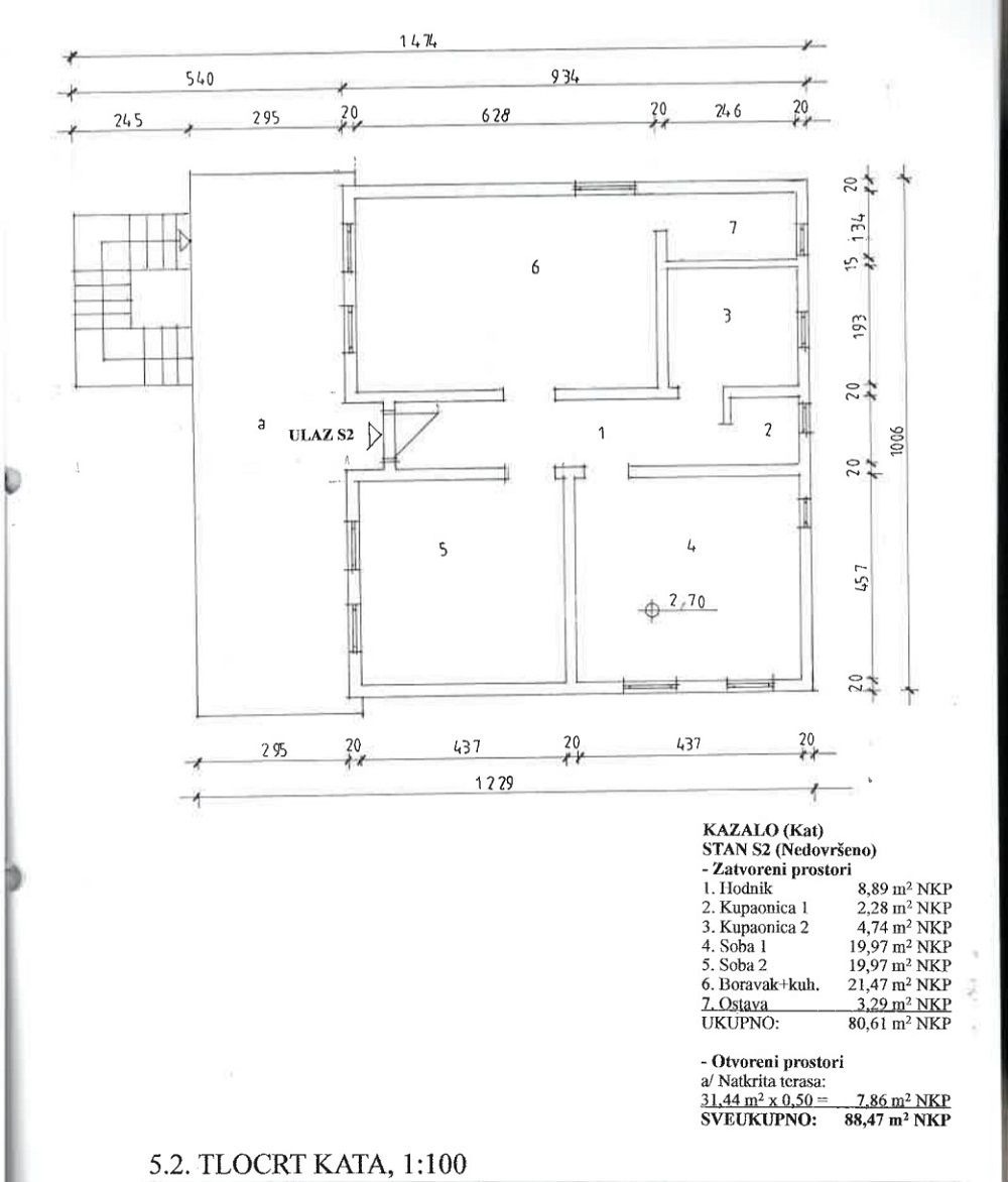
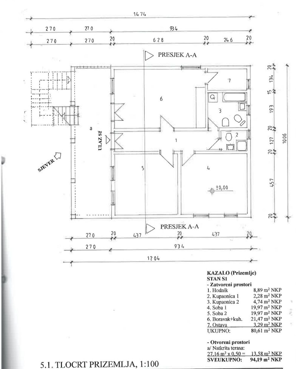
Casa in città VIR - con un prezzo di 360.000,00 € - con una superficie di 182 m2

Foto dell'agenzia NINA DOM - Agencija za promet nekretninama

REC ID 1191533

Dettagli