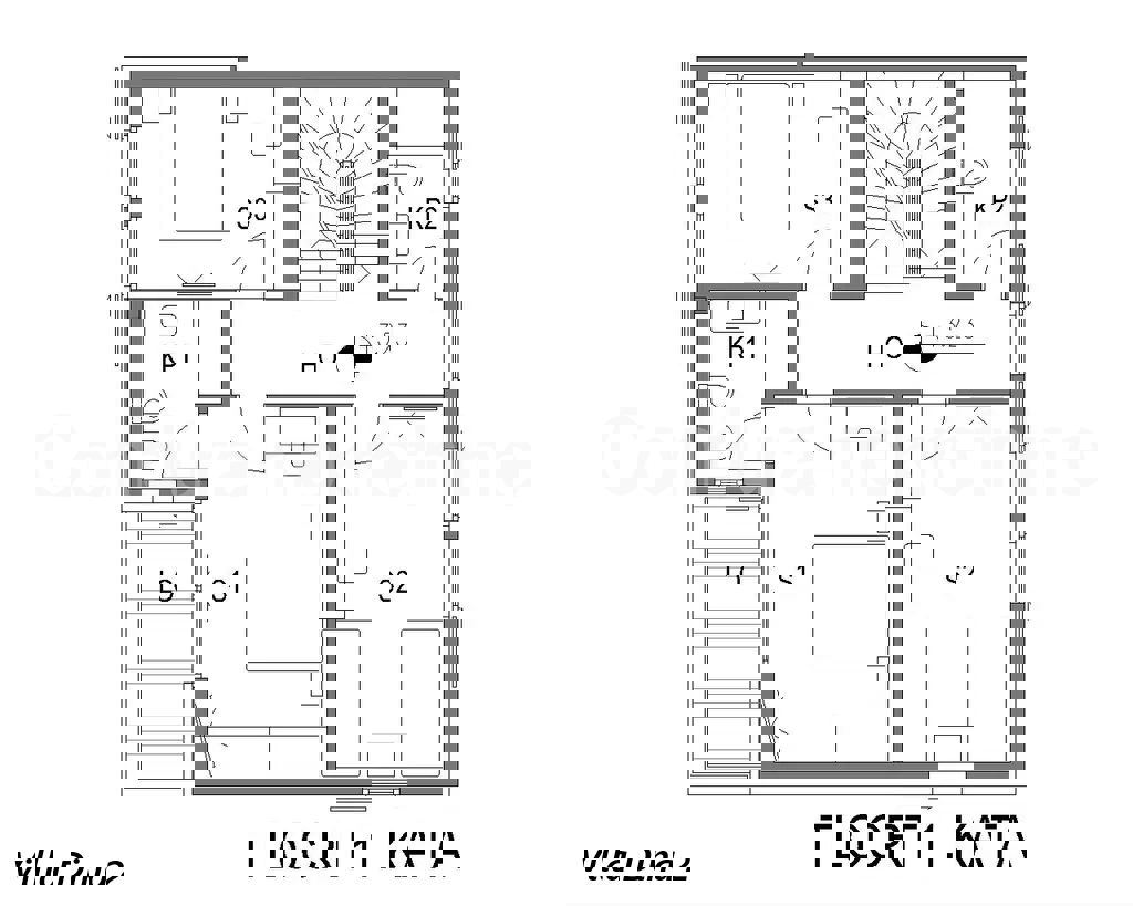
Casa in città PRIVLAKA - con un prezzo di 700.000,00 € - con una superficie di 241 m2

Foto dell'agenzia Condura Nekretnine

REC ID 1160100

Dettagli