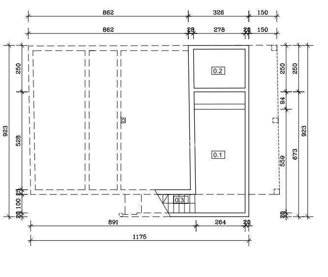
Casa in città VIR - con un prezzo di 749.000,00 € - con una superficie di 230 m2

Foto dell'agenzia NINA DOM - Agencija za promet nekretninama

REC ID 1068217

Dettagli