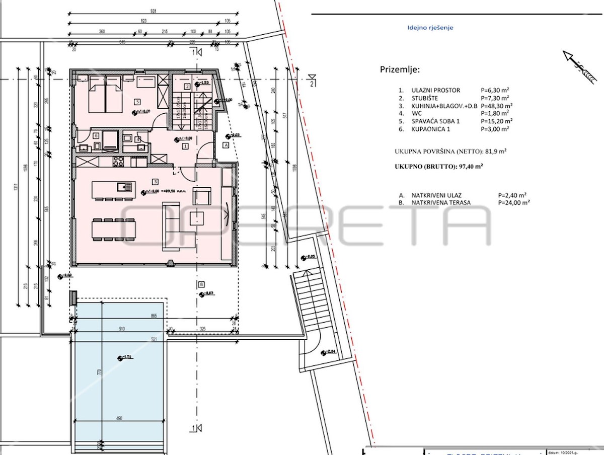
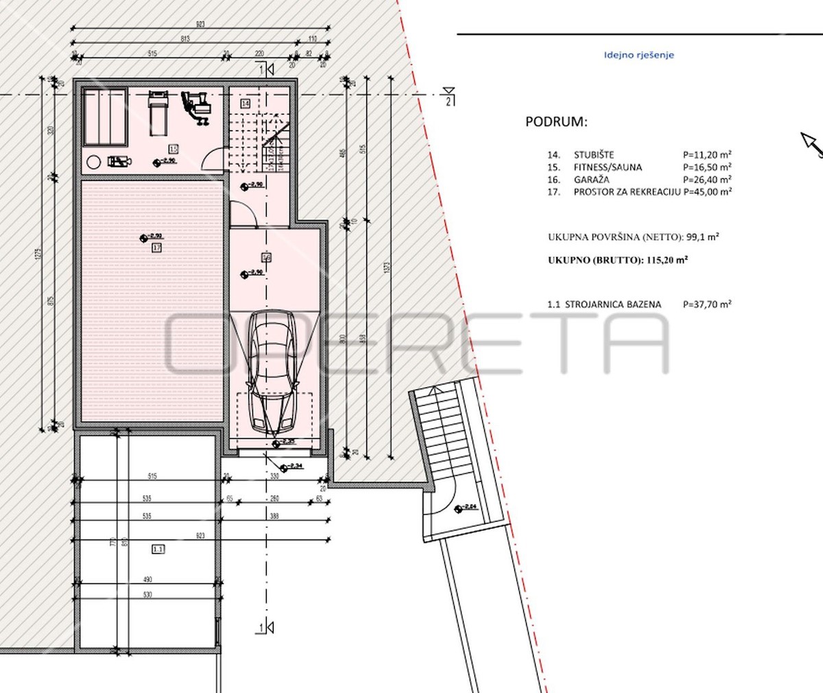
Casa in città PODSTRANA - con un prezzo di 2.400.000,00 € - con una superficie di 320 m2

Foto dell'agenzia Opereta Real Estate

REC ID 1048970

Dettagli