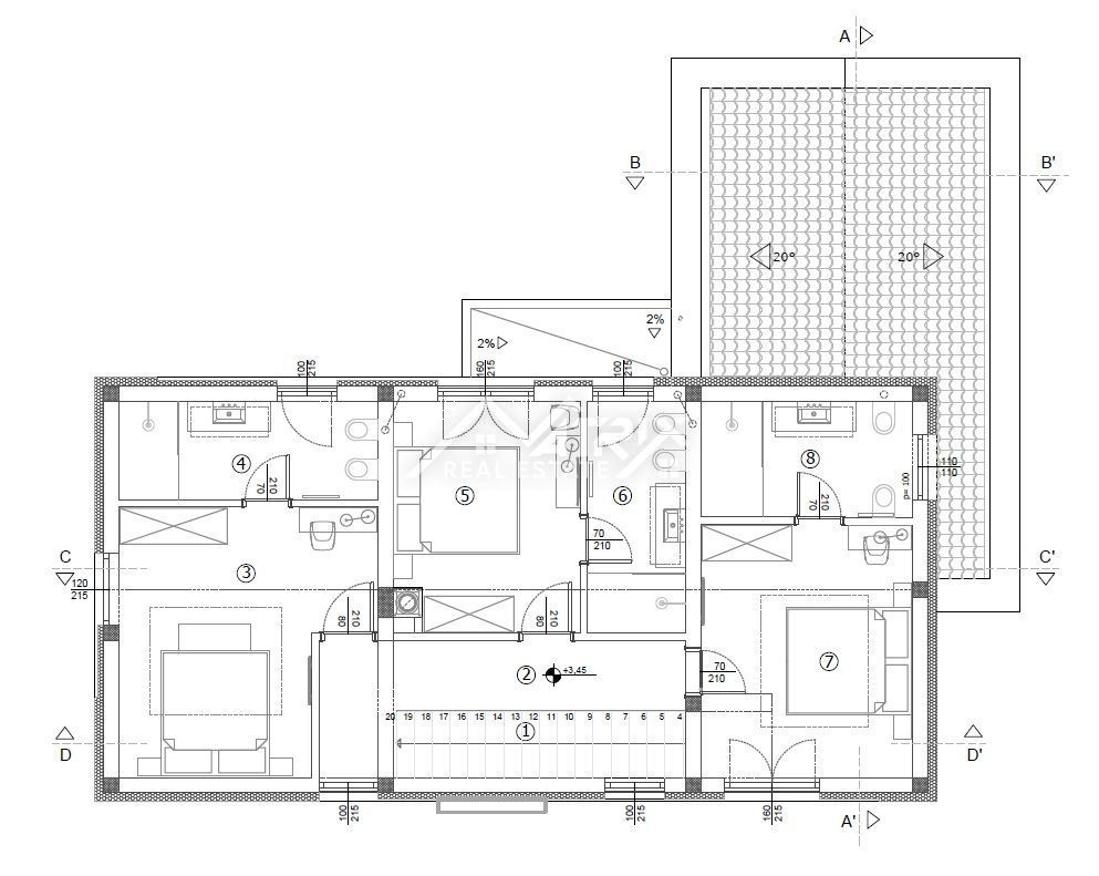
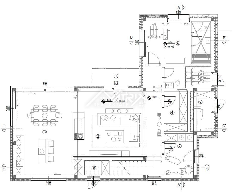
REC ID# 1226414 - VRSAR