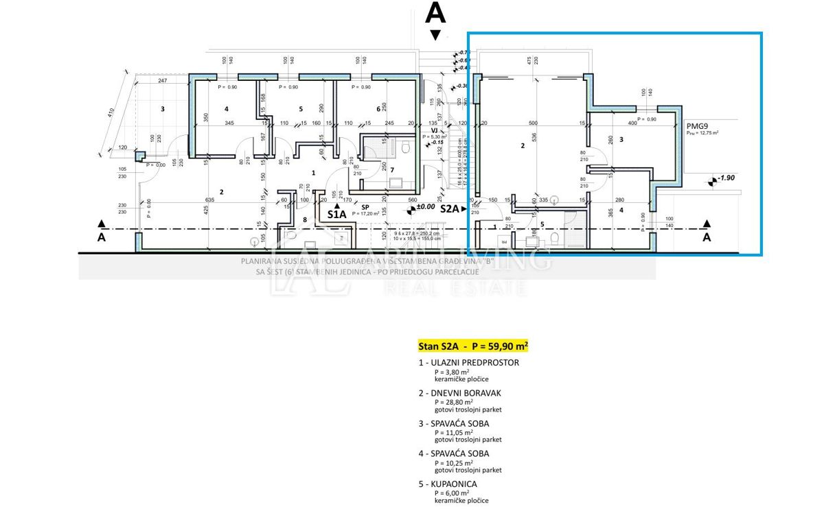
REC ID# 1223019 - UMAG