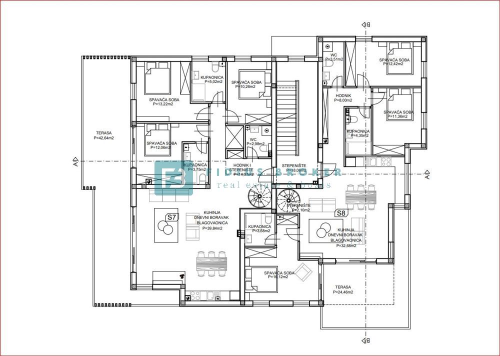
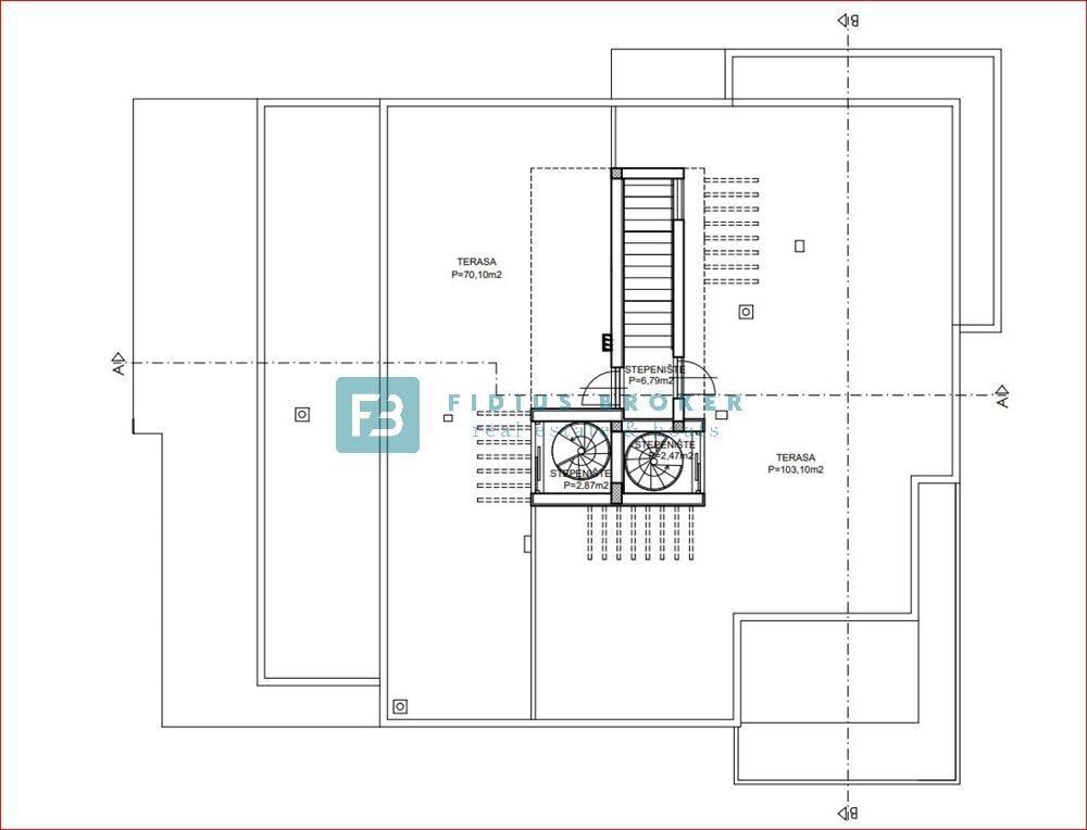
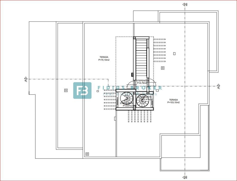
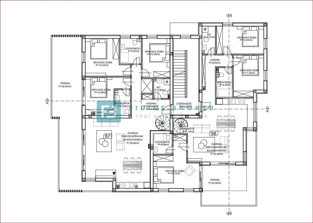
REC ID# 1248152 - SRIMA