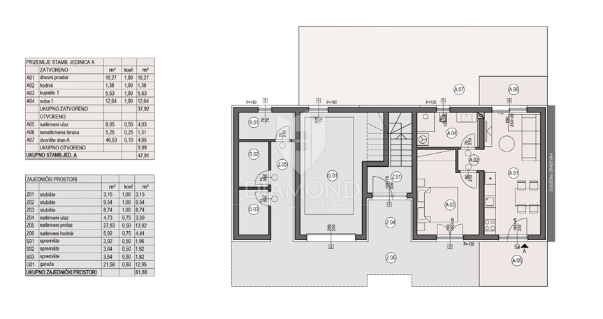
REC ID# 1256328 - PULA