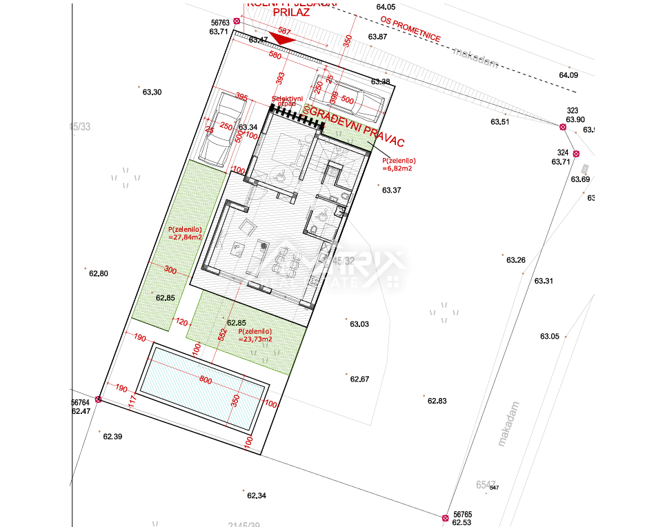
REC ID# 1245876 - PULA