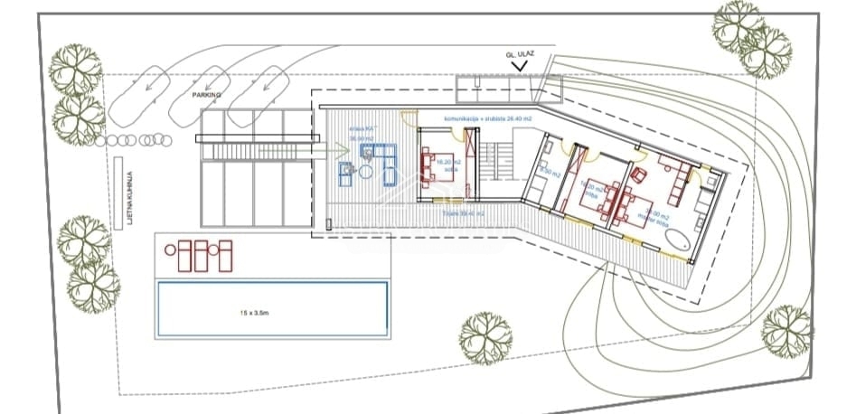
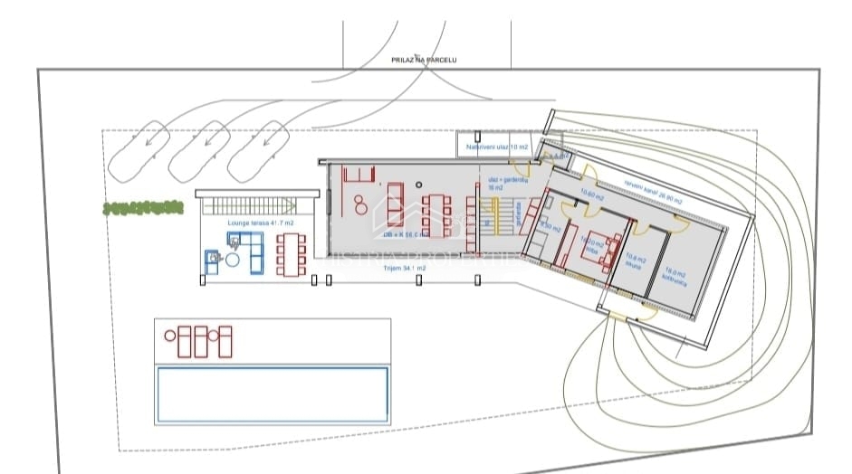
REC ID# 1239110 - PULA