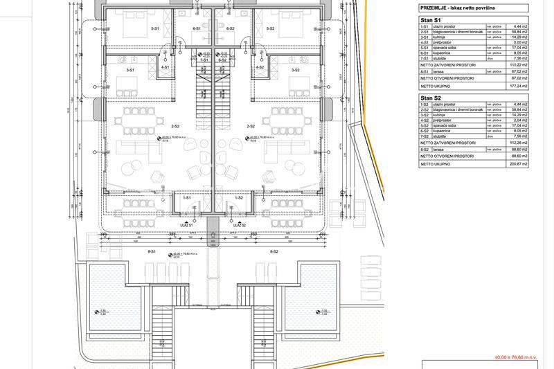
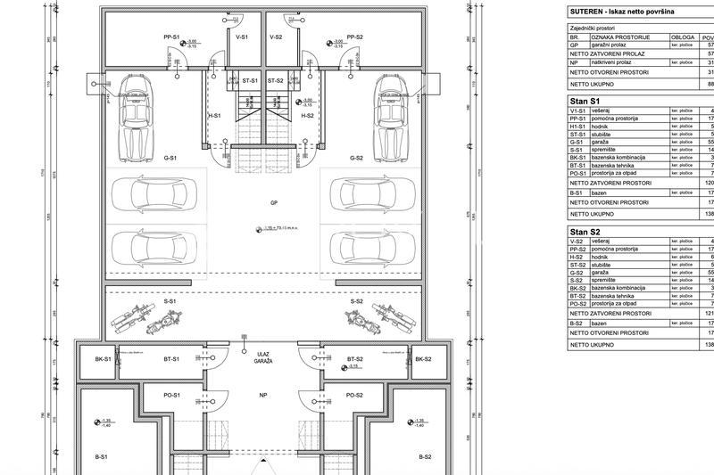
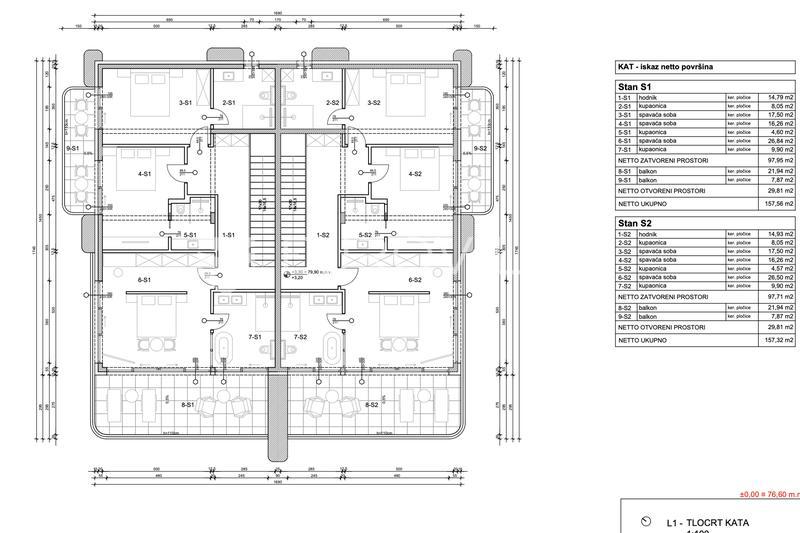
REC ID# 1239270 - PRIMOŠTEN