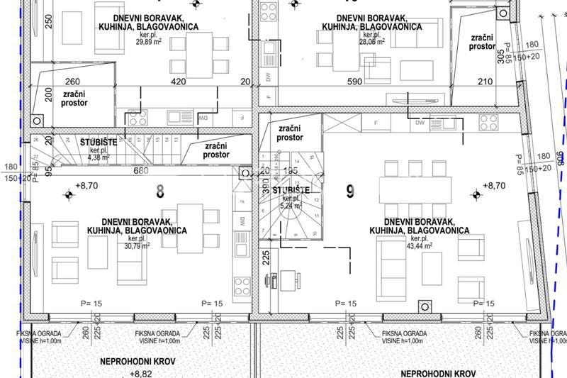
REC ID# 1248382 - POVLJANA